Vuokrataan toimistotilat - Helsinki
Hankasuontie 9, Konala, 00390 Helsinki #10847883
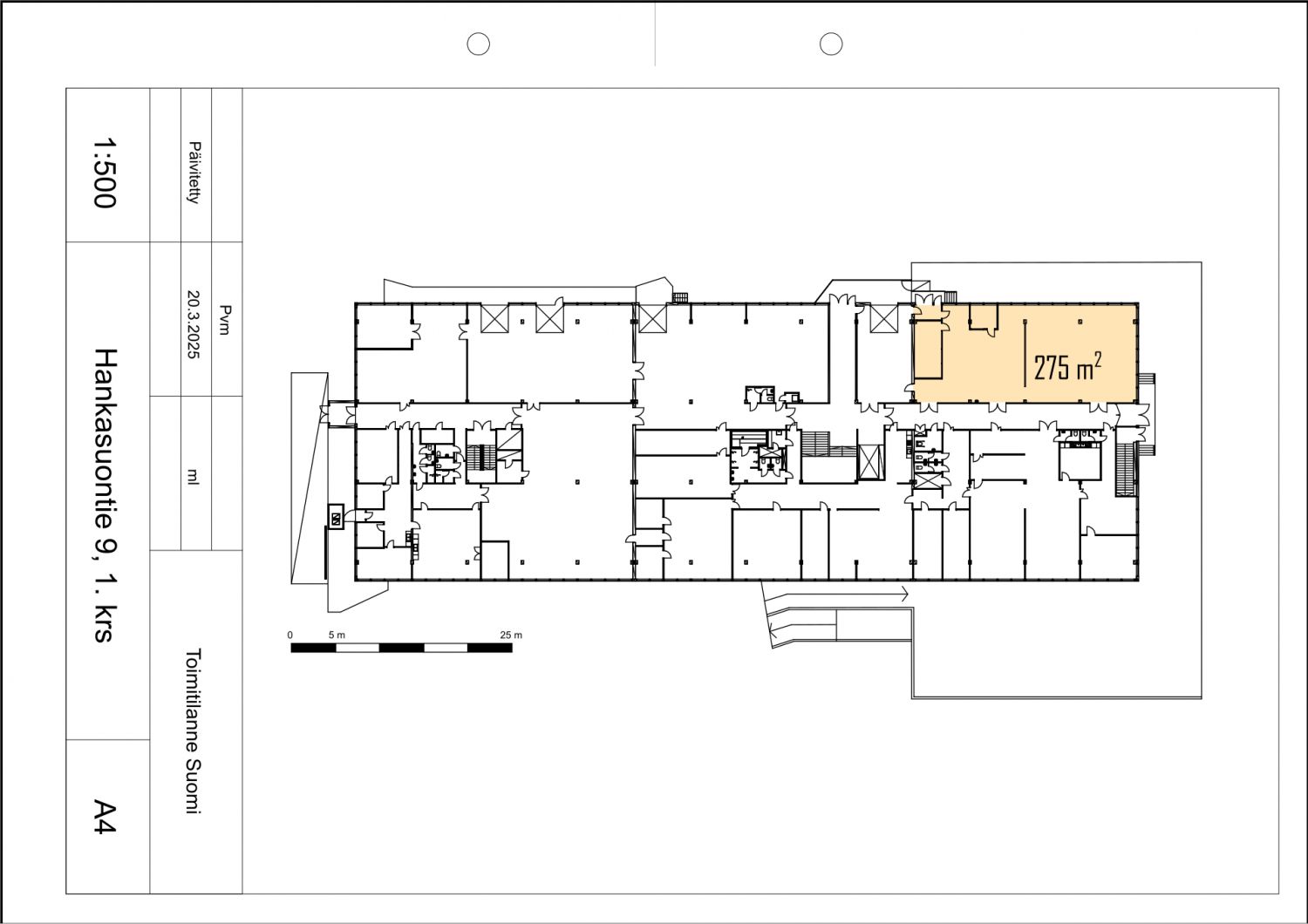
Nyt vuokrattavissa toimitila kiinteistön ensimmäisestä kerroksesta. Tilasta löytyy väliseinä, joka jakaa tilan noin puoliksi toimistolle ja varastolle. Kulkuyhteys ulkoa suoraan omasta ovesta tai lastauslaiturilta käytävän kautta. Varastopuolelle myös oma ovi käytävästä. Toimistossa keittiönurkka, wc:t käytävällä.
Hankasuontie 9 sijaitsee Helsingin Konalassa, Kehä I:n ja Vihdintien välittömässä läheisyydessä, mikä takaa erinomaiset yhteydet sekä Helsingin keskustaan että Espoon ja Vantaan suuntaan. Alueelle on helppo saapua omalla autolla ja busseilla, ja Konalan monipuoliset palvelut, kuten lounasravintolat, liikuntapalvelut ja kaupat löytyvät aivan lähietäisyydeltä. Sijainti tarjoaa yritykselle hyvän saavutettavuuden, näkyvyyden ja toimivan ympäristön arjen sujumiselle.
Me Croisettella autamme teitä löytämään teille parhaat tilat! Olemme puolueettomia asiantuntijoita ja tunnemme toimitilamarkkinat, talot sekä tilat vankalla kokemuksella. Meillä on välityksessä kaikki toimitilat ja tiedämme niiden alustavat vuokratasot.
Tehtävämme on tehdä toimitilahaustanne onnistunutta ja helppoa. Saamme palkkiomme kiinteistönomistajalta, joten sinulle palvelumme on täysin maksuton. Jos kiinnostuit, ota yhteyttä sähköpostitse osoitteeseen vuokraus@croisette.fi tai soita numeroon +358 4 00585857.
Croisette Real Estate Partner
Erottajankatu 5 A 6, 00130 Helsinki
Näytä puhelinnumero
+358 400 585 857
Croisette Vuokraus
Näytä puhelinnumero
+358400585857
