Vuokrataan toimistotilat - Helsinki
Hankasuontie 9, Konala, 00390 Helsinki #10847882
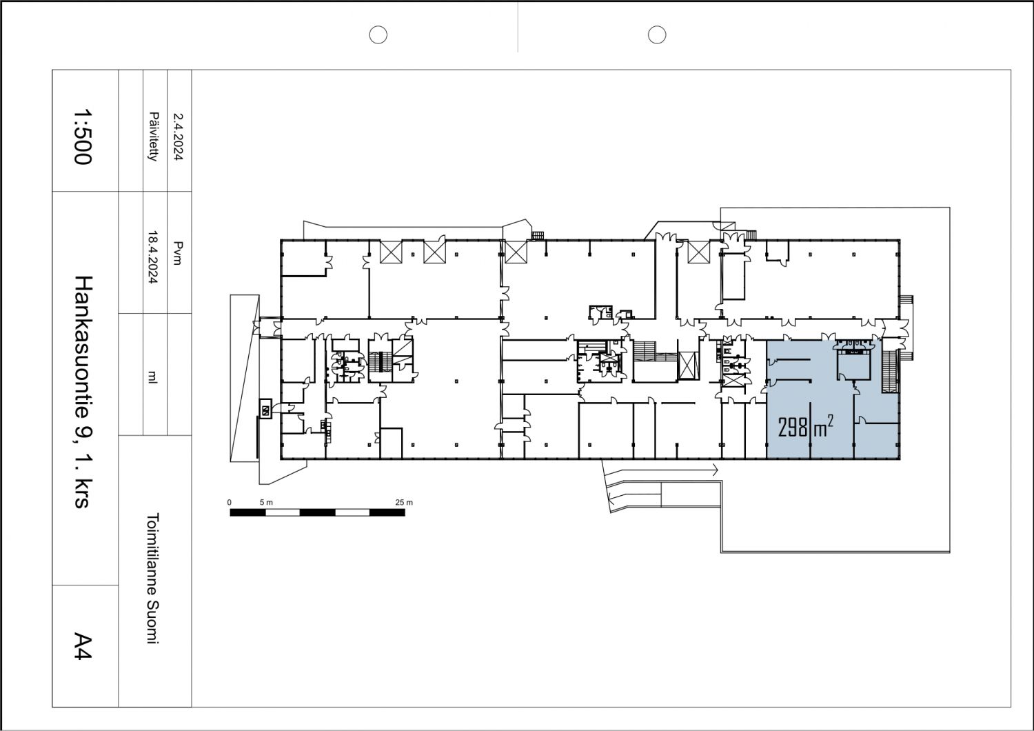
Vuokrataan katutason toimisto-varastotila, jossa on keittiö ja wc- tilat. Toimiston osuus on noin 152 m² ja varaston 146 m². Lastauslaituri käytössä. Väliseiniä on mahdollista poistaa ja näin avata tiloja. Rauhallinen sisäänkäynti pihan puolelta, jossa parkkipaikkoja.
Hankasuontie 9 sijaitsee Helsingin Konalassa, Kehä I:n ja Vihdintien välittömässä läheisyydessä, mikä takaa erinomaiset yhteydet sekä Helsingin keskustaan että Espoon ja Vantaan suuntaan. Alueelle on helppo saapua omalla autolla ja busseilla, ja Konalan monipuoliset palvelut, kuten lounasravintolat, liikuntapalvelut ja kaupat löytyvät aivan lähietäisyydeltä. Sijainti tarjoaa yritykselle hyvän saavutettavuuden, näkyvyyden ja toimivan ympäristön arjen sujumiselle.
Me Croisettella autamme teitä löytämään teille parhaat tilat! Olemme puolueettomia asiantuntijoita ja tunnemme toimitilamarkkinat, talot sekä tilat vankalla kokemuksella. Meillä on välityksessä kaikki toimitilat ja tiedämme niiden alustavat vuokratasot.
Tehtävämme on tehdä toimitilahaustanne onnistunutta ja helppoa. Saamme palkkiomme kiinteistönomistajalta, joten sinulle palvelumme on täysin maksuton. Jos kiinnostuit, ota yhteyttä sähköpostitse osoitteeseen vuokraus@croisette.fi tai soita numeroon +358 4 00585857.
Croisette Real Estate Partner
Erottajankatu 5 A 6, 00130 Helsinki
Näytä puhelinnumero
+358 400 585 857
Croisette Vuokraus
Näytä puhelinnumero
+358400585857
