Vuokrataan toimistotilat - Vantaa
Martinkyläntie 54, Varisto, 01720 Vantaa #10847869
Vuokrattavana 2 kerroksen erittäin siistiä toimistotilaa.
Osoite
Martinkyläntie 54, 01720 Vantaa
Tilatyyppi
Toimistotilaa
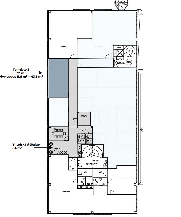
43,5 m2
Kiinteistö
Vuokrattavana 2. kerroksen erittäin siistiä toimistotilaa.
Sijainti
Varisto, Vantaa
Pysäköinti
Piha-alueella on runsaasti pysäköintipaikkoja.
Palvelut
Lähialueen palvelut.
Kulkuyhteydet
-Bussi
-Oma auto
-Oma auto
Vapautuu
Heti
Kerros
2
Energiatehokkuusluokka
Ei lain edellyttämää energiatodistusta
Näkyvällä paikalla
Ota yhteyttä
REALIUM OY LKV
Tammasaarenkatu 1, 00180 Helsinki
Vaihde:
Näytä puhelinnumero
010 326 346
Tuomo Mäkelä
tuomo.makela@realium.fi
p.
Näytä puhelinnumero
044 050 1158
Joel Keto
joel.keto@realium.fi
p.
Näytä puhelinnumero
045 317 0330
KAIKKI TILAVAIHTOEHDOT KERRALLA!
SOITA - MEILAA JA TILAA NÄYTTÖ!
Ilmainen palvelu tilanhakijoille.
Kartoitamme parhaat tilavaihtoehdot.
Kaikki kohteet eivät ole netissä.
Pyydä lisätietoa
