Vuokrataan toimistotilat - Helsinki
Mikonkatu 8 A, Keskusta, 00100 Helsinki #10847808
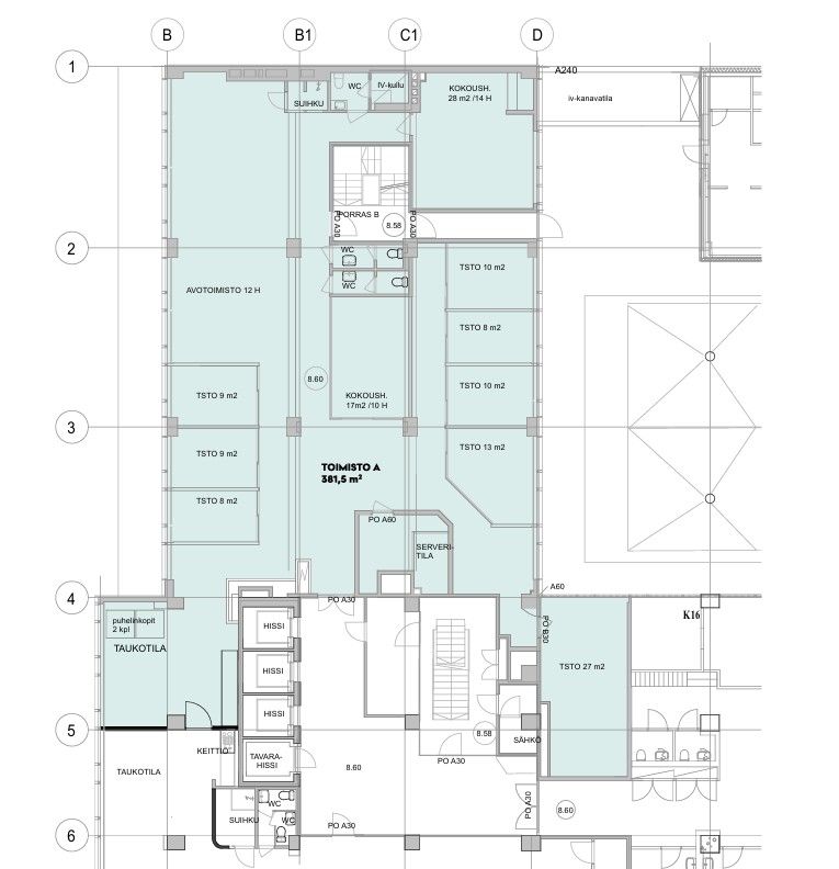
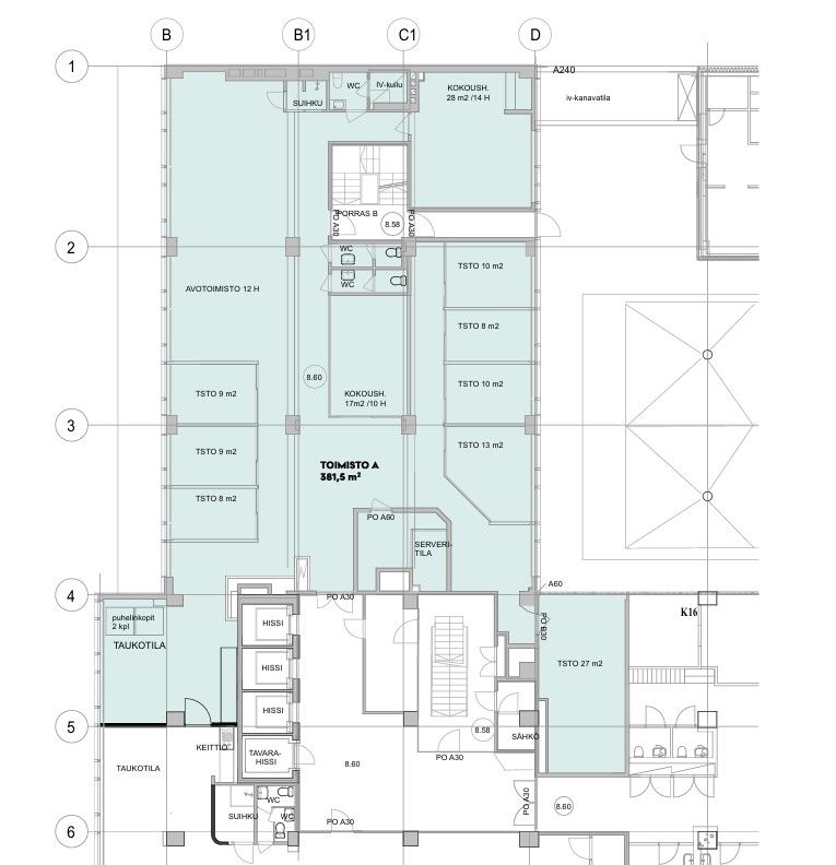
Vuokrataan 3. kerroksen toimisto aitiopaikalta Aikatalosta Helsingin ydinkeskustasta. Tilassa on 8 työhuonetta, 2 kokoushuonetta, taukotila ja keittiö sekä 3 wc:tä ja suihku. Koneellinen ilmanvaihto ja jäähdytys.
Lounaspaikat ja kaikki julkiset yhteydet lähellä. Autoilijoille vuokrattavissa parkkipaikkoja alueen pysäköintilaitoksista.
Lisätietoja soita 020 730 4530 tai info@repoint.fi. Palvelumme on tilanhakijalle ilmainen.
Osoite
Mikonkatu 8 A, 00100 Helsinki
Tilatyyppi
Toimistotilaa
381,5 m2
Vapautuu
Kysy
Kerros
3
Ota yhteyttä
Repoint Toimitilat Oy
Itälahdenkatu 22 B, 00210 Helsinki
Näytä puhelinnumero
020 730 4530
Lisätietoja soita Näytä puhelinnumero 020 730 4530 tai info@repoint.fi
https://repoint.fi/Pyydä lisätietoa
