Vuokrataan liiketilat - Lahti
Tupalankatu 3, Renkomäki, 15680 Lahti #10847714
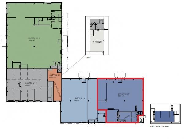
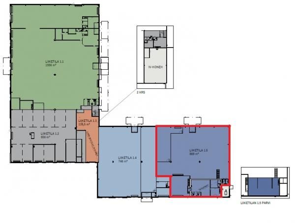
Renkomäen kauppa-alueelta katutason liiketila. Tilassa myymälä, toimisto- ja varastotilaa.
Tila on muokattavissa asiakkaan tarpeita vastaamaan.
Osoite
Tupalankatu 3, 15680 Lahti
Tilatyyppi
Liiketilaa
888 m2
Kiinteistö
Renkomäen kauppa-alueelta katutason liiketila. Tilassa myymälä, toimisto- ja varastotilaa.
Tila on muokattavissa asiakkaan tarpeita vastaamaan.
Tila on muokattavissa asiakkaan tarpeita vastaamaan.
Pysäköinti
Pihalla pysäköintitilaa
Vapautuu
01.01.2026
Kerros
Katu
Ota yhteyttä
TopReal
Hietalahdenranta 17 B, 00180 Helsinki
Näytä puhelinnumero
09 6227 7852
Soita ja kysy lisää, tai tutustu www-sivuihimme!
http://www.topreal.fiPyydä lisätietoa
