Vuokrataan liiketilat - Lahti
Tupalankatu 3, Renkomäki, 15680 Lahti #10847713
Renkomäen kauppa-alueelta katutason liiketila. Tilassa näyttelytila, taukotilat, ja kaksi nosto-ovea tilaan.
Tila on muokattavissa asiakkaan tarpeita vastaamaan.
Osoite
Tupalankatu 3, 15680 Lahti
Tilatyyppi
Liiketilaa
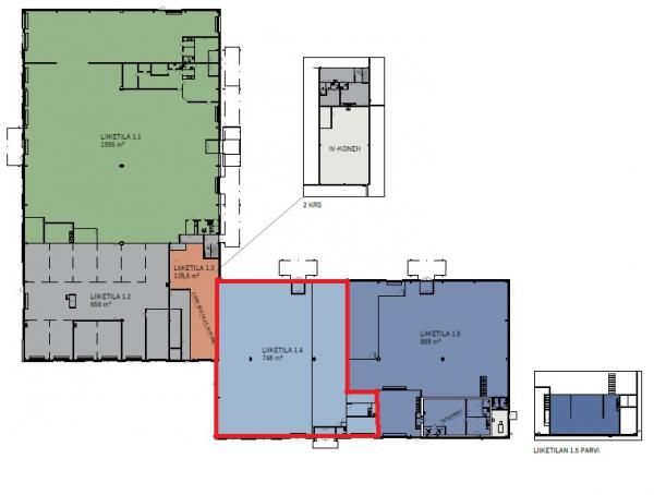
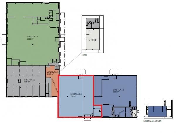
746 m2
Kiinteistö
Renkomäen kauppa-alueelta katutason liiketila. Tilassa näyttelytila, taukotilat, ja kaksi nosto-ovea tilaan.
Tila on muokattavissa asiakkaan tarpeita vastaamaan.
Tila on muokattavissa asiakkaan tarpeita vastaamaan.
Pysäköinti
Pihalla pysäköintitilaa
Vapautuu
Kysy
Kerros
Katu
Ota yhteyttä
TopReal
Hietalahdenranta 17 B, 00180 Helsinki
Näytä puhelinnumero
09 6227 7852
Soita ja kysy lisää, tai tutustu www-sivuihimme!
http://www.topreal.fiPyydä lisätietoa
