Vuokrataan liiketilat - Kouvola
Lehtikaari 3, Korjala, 45130 Kouvola #10847712
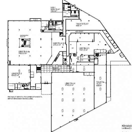
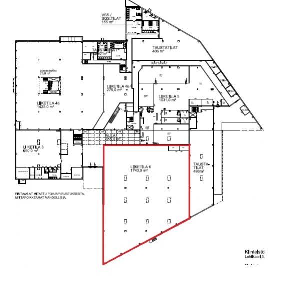
Kauppakeskus Veturin läheisyydestä liiketilaa kiinteistön alemmasta kerroksesta. Nykyaikainen liiketila hyvällä paikalla, loistava näkyvyys parkkipaikoille. Tila soveltuu tilaa vievälle kaupalle.
Osoite
Lehtikaari 3, 45130 Kouvola
Tilatyyppi
Liiketilaa
1743 m2
Pysäköinti
Pihalla runsaassti pysäköintitilaa
Vapautuu
Kysy
Kerros
Katu
Ota yhteyttä
TopReal
Hietalahdenranta 17 B, 00180 Helsinki
Näytä puhelinnumero
09 6227 7852
Soita ja kysy lisää, tai tutustu www-sivuihimme!
http://www.topreal.fiPyydä lisätietoa
