Vuokrataan toimistotilat - Helsinki
Fredrikinkatu 47, Keskusta, 00100 Helsinki #10847709
Osoite
Fredrikinkatu 47, 00100 Helsinki
Tilatyyppi
Toimistotilaa
215 m2
Kiinteistö
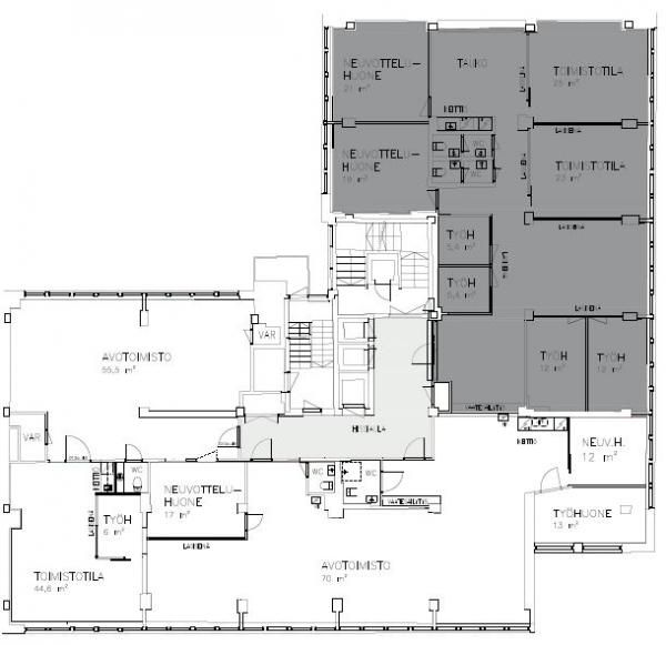
Hyvä sijainti Kampissa, Fredan ja Kalevankadun nurkkakiinteistö. Siisti toimistotila koostuu 8.huoneesta, avokeittiöstä, ja 2.WC. Lyhyt kävelymatka Kampin Kauppakeskukseen, ja Metroasemalle.
Pysäköinti
Kiinteistöllä parkkihalli, ja muut alueen parkkihallit
Palvelut
Kaikki keskustan palvelut kävelyetäisyydellä.
Kulkuyhteydet
Metro, raitiovaunu, ja linja-autoasema lähellä
Vapautuu
Kysy
Kerros
4
Hissi
Ota yhteyttä
TopReal
Hietalahdenranta 17 B, 00180 Helsinki
Näytä puhelinnumero
09 6227 7852
Soita ja kysy lisää, tai tutustu www-sivuihimme!
http://www.topreal.fiPyydä lisätietoa
