Vuokrataan toimistotilat - Espoo
Ruukinkuja 4, Kiviruukki, 02330 Espoo #10847613
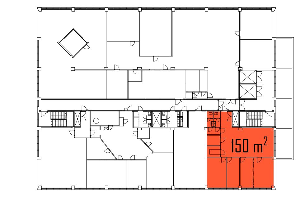
Vuokrattavana toimistotilaa Espoon Kiviruukissa.
Tämä 150 m² toimisto sijaitsee kiinteistön 2. kerroksessa. Tila koostuu avotilasta sekä neljästä työhuoneesta ja siihen kuuluu myös oma keittiö ja wc. Tila soveltuu myös varastokäyttöön.
Espoon Kivenlahden teollisuusalueella sijaitsevassa toimitilakiinteistö on valmistunut 1980-luvulla. Kiinteistössä on toimistotilojen lisäksi varastotilaa ja tuotanto- ja teollisuustilaa. Kiinteistössä on kolme kerrosta ja kellarikerros, pihalla autopaikkoja sekä lastauslaituri, johon pääsee suurellakin ajoneuvolla. Rakennuksessa on hissiyhteys kerroksiin 1-3. Alueelle on hyvät kulkuyhteydet Länsiväylältä sekä Kehä III:lta.
Kysy lisää numerosta 044 723 4700 tai info@bref.fi. Palvelumme on tilanhakijoille ilmainen.
Hissi
Bureau Real Estate Finland Oy
Lars Sonckin kaari 16, 02600 Espoo
Näytä puhelinnumero
0447234700
Bureau Real Estate Finland Oy
https://www.bref.fi