Vuokrataan tuotantotilat, varastotilat - Helsinki
Hankasuontie 9, Konala, 00390 Helsinki #10847520
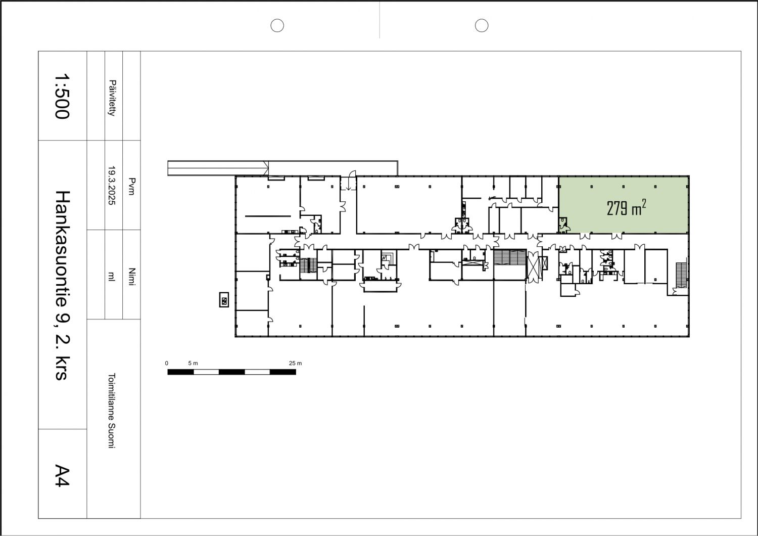
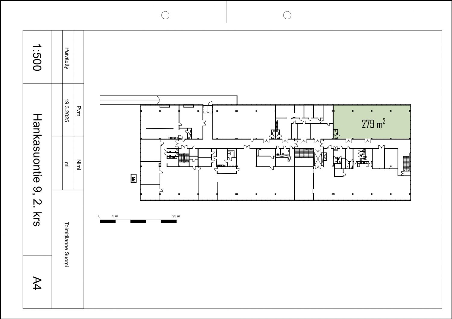
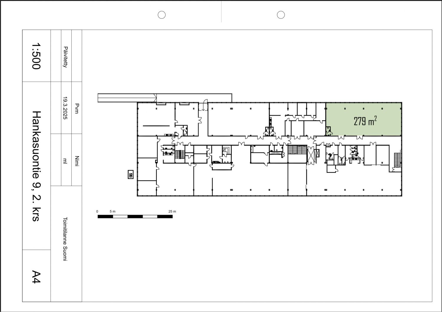
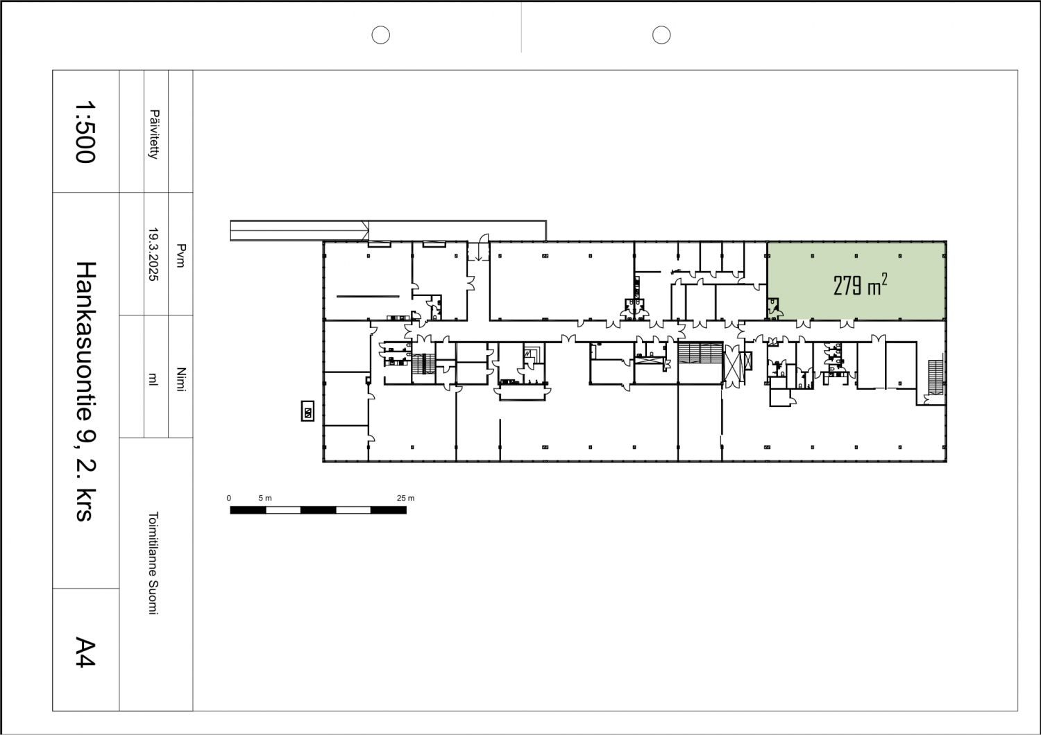
Rouhea toisen kerroksen tuotanto- tai varastotila on mahdollisuuksia täynnä. Tilan korkeus on noin 3 m ja kattoikkunat tuovat lisää valoa. Oma wc käytössä. Toiseen kerrokseen johtaa ajoramppi, lisäksi käytettävissä on kiinteistön tavarahissi. Kysy tilaa myös remontoituna.
Tämä teollisuuskiinteistö on peruskorjattu vuosien 2009 ja 2010 aikana, jolloin uusittiin rakenteiden ja pintojen ohella myös tekniikka. Kohteen tilat soveltuvat mm. metallinkäsittelyyn tai muuhun vastaavaan pienteolliseen toimintaan. Rakennuksessa toimii tällä hetkellä yrityksiä mm. maahantuonnin, tukkukaupan ja kokoonpanon aloilta. Tiloissa on myös koulutustiloja valmiina. Kiinteistössä tavarahissi (3,5 tn) sekä lastauslaituri.
Kohde sijaitsee hyvien kulkuyhteyksien äärellä Vihdintien tuntumassa, Kehä I:n lähellä.
Lisätietoja numerosta 020 7290 710. Lisää kohteita osoitteessa www.premises.fi.
Kohteella ei ole lain edellyttämää energiatodistusta tai energialuokka ei tiedossa.Kerros: 2
CRE PREMISES
Puh. Näytä puhelinnumero 020 7290 710
Vantaankoskentie 14
01670 VANTAA
