Vuokrataan toimistotilat, näyttelytilat - Helsinki
Itälahdenkatu 23, Lauttasaari, 00210 Helsinki #10847516
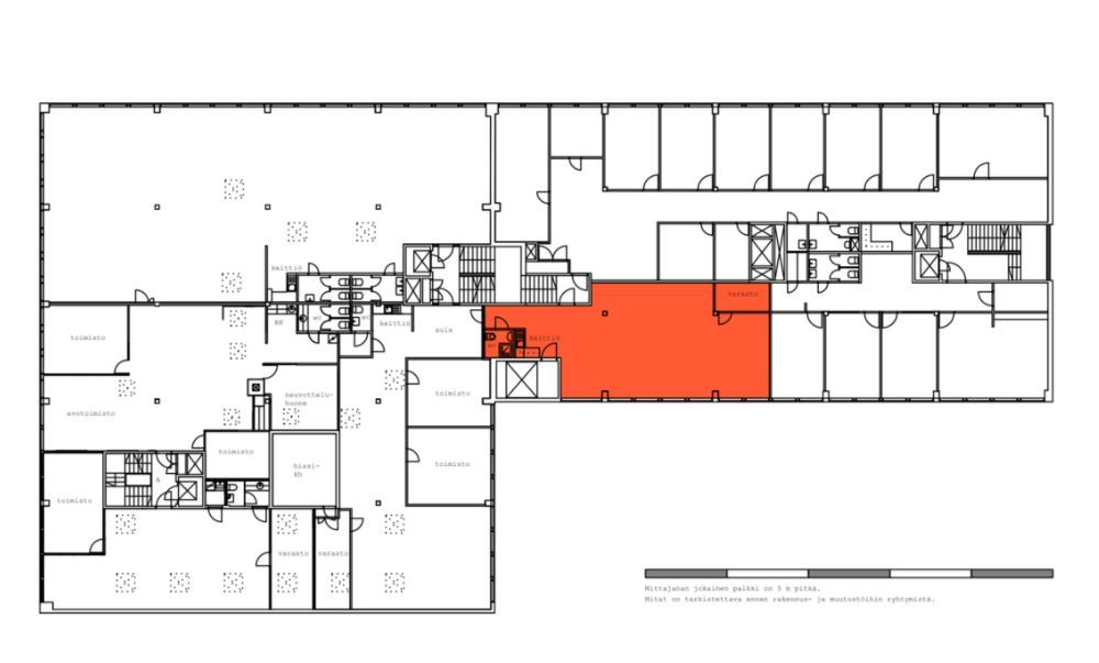
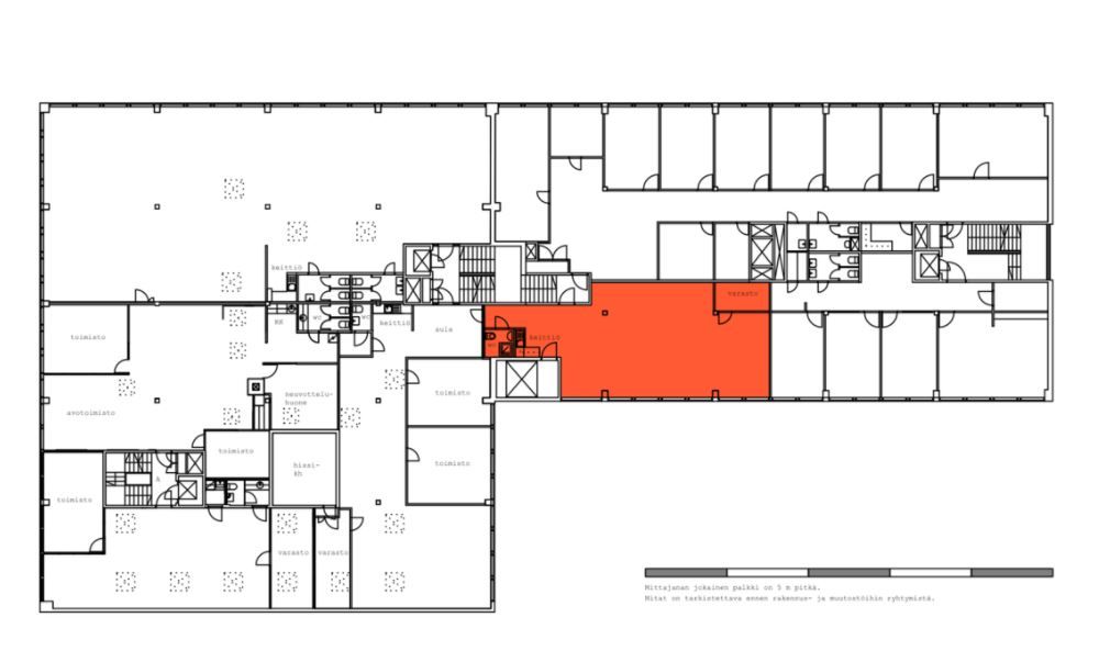
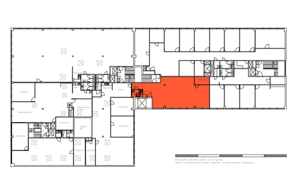
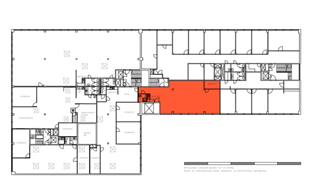
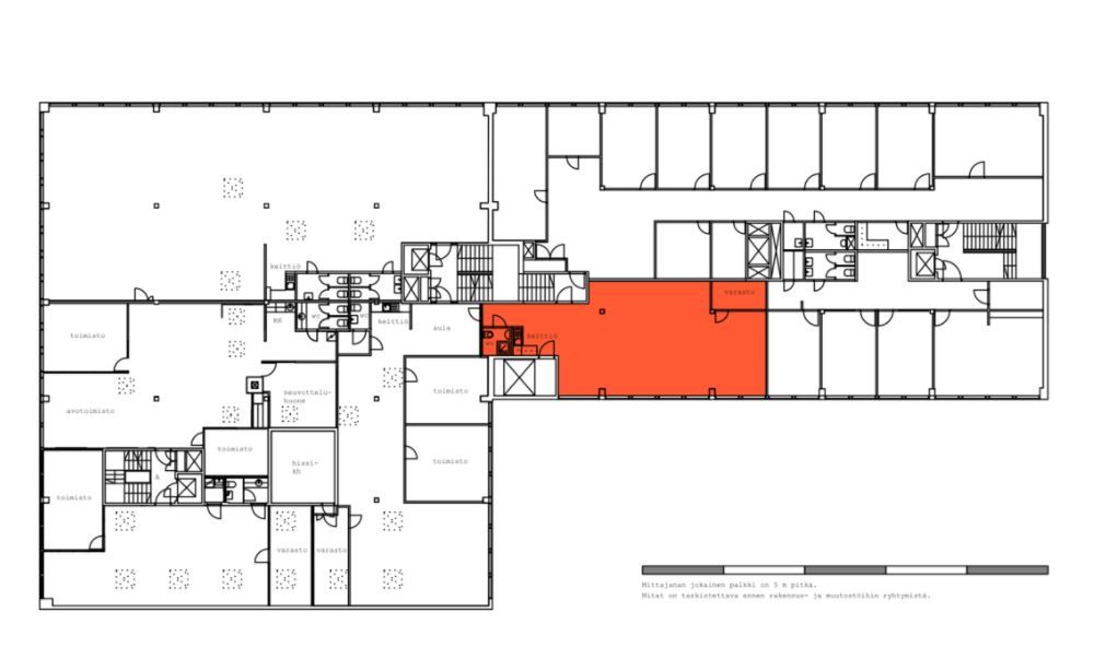
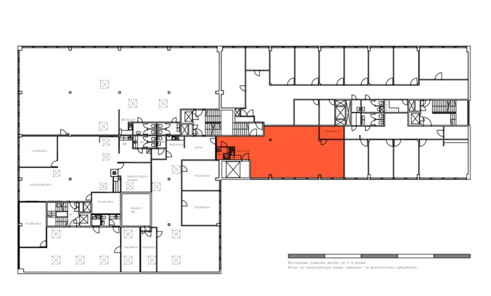
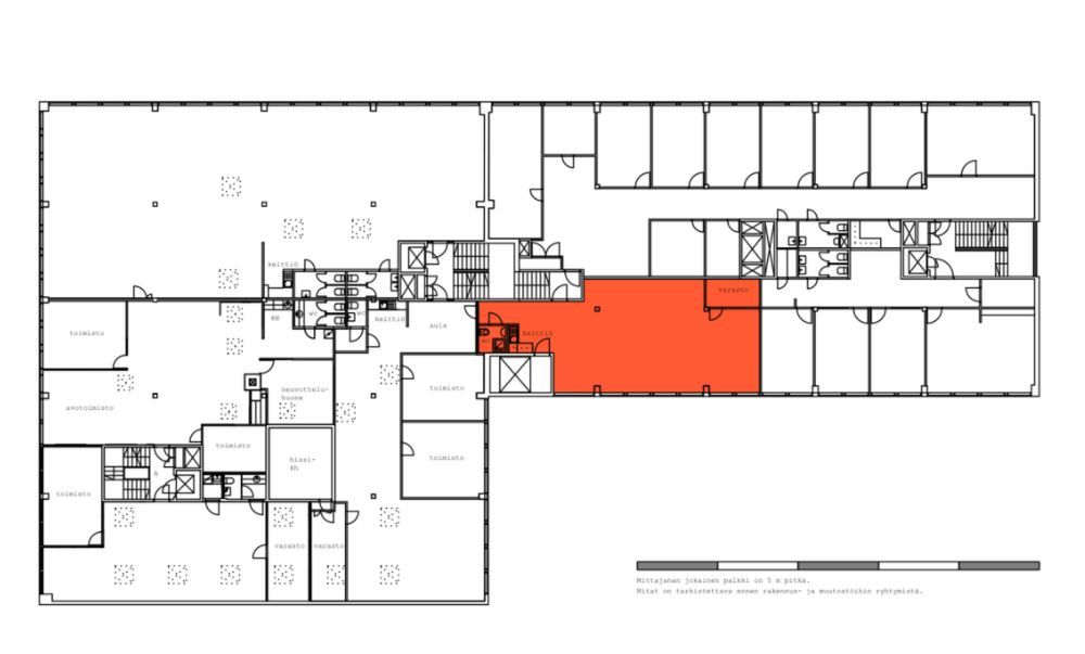
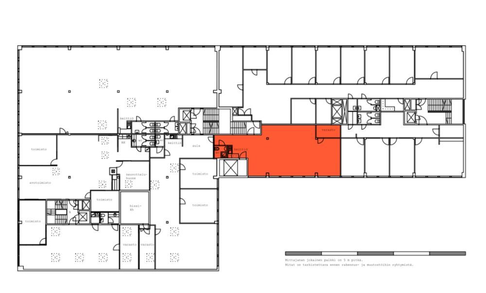
Hiljattain remontoitu ylimmän kerroksen toimitila vuokrattavana: tilava huone, varastohuone, keittiö ja suihkullinen wc. Tila sopii toimistoksi ja näyttelytilaksi. Toimistossa on oma ilmalämpöpumppu viilennystä varten. Käytössä henkilöhissi.
Helsingin Lauttasaaressa sijaitseva toimistorakennus on valmistunut 1970-luvulla. Sen kokonaispinta-ala on 7000 m2. Kohteessa on omia parkkipaikkoja ja lastauslaituri. Toimitilojen lähistöllä on useita lounasravintoloita.
Rakennuksessa on viisi kerrosta ja kellarikerros. Henkilöhissit kulkevat kaikkiin kerroksiin, tavarahissit kellarista 4. kerrokseen asti.
Yhteydenotot 020 7290 710. Lisää kohteita www.premises.fi
Kohteella ei ole lain edellyttämää energiatodistusta tai energialuokka ei tiedossa.Kerros: 5
CRE PREMISES
Puh. Näytä puhelinnumero 020 7290 710
Vantaankoskentie 14
01670 VANTAA
