Vuokrataan toimistotilat, varastotilat - Sipoo
Rahtiraitti 6, Bstukärr, 04220 Sipoo #10847490
Rahtiraitti 6
Osoite
Rahtiraitti 6, 04220 Sipoo
Tilatyyppi
Toimistotilaa
400 m2
Varastotilaa
8000 - 19600 m2
Yhteensä
8400 - 20000 m2
Kiinteistö
Vuokrattavana logistiikkatilaa Sipoon Bastukärrissä, osoitteessa Rahtiraitti 6
Bastukärrin moderni logistiikkakeskus, valmistunut vuonna 2024, tarjoaa korkealuokkaista logistiikkatilaa Sipoossa, lähellä Kehä 3:sta. Sijainti on erinomainen logistiikkatoiminnalle – hyvät yhteydet Vuosaaren satamaan, Helsinki-Vantaan lentokentälle sekä pääväylille takaavat sujuvan kuljetuksen.
Kohteen tiedot:
Kokonaisala: n. 45 000 m²
Vapaana: A-puoli, n. 20 000 m²
Vapaa korkeus: 12,5 m
Useita lastauslaitureita tehokkaaseen tavarankäsittelyyn
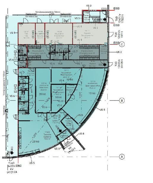
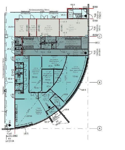
Toimistotilat ja sosiaalitilat: n. 400 m² (sis. suihkut ja pukuhuoneet)
Laaja piha-alue ja runsaasti pysäköintitilaa myös raskaalle kalustolle
Liikenneyhteydet:
Kehä III: n. 5 min
Vuosaaren satama: n. 20 min
Helsinki-Vantaa: n. 20 min
Jos etsit joustavaa ja modernia ratkaisua logistiikkatarpeisiisi, tämä kohde tarjoaa erinomaiset puitteet.
Ota yhteyttä
Jos tilat kiinnostavat teitä, ottakaa yhteyttä Rauno Nurmeen, puh. +358 50 5522683, rauno.nurmi@logistila.fi
Bastukärrin moderni logistiikkakeskus, valmistunut vuonna 2024, tarjoaa korkealuokkaista logistiikkatilaa Sipoossa, lähellä Kehä 3:sta. Sijainti on erinomainen logistiikkatoiminnalle – hyvät yhteydet Vuosaaren satamaan, Helsinki-Vantaan lentokentälle sekä pääväylille takaavat sujuvan kuljetuksen.
Kohteen tiedot:
Kokonaisala: n. 45 000 m²
Vapaana: A-puoli, n. 20 000 m²
Vapaa korkeus: 12,5 m
Useita lastauslaitureita tehokkaaseen tavarankäsittelyyn
Toimistotilat ja sosiaalitilat: n. 400 m² (sis. suihkut ja pukuhuoneet)
Laaja piha-alue ja runsaasti pysäköintitilaa myös raskaalle kalustolle
Liikenneyhteydet:
Kehä III: n. 5 min
Vuosaaren satama: n. 20 min
Helsinki-Vantaa: n. 20 min
Jos etsit joustavaa ja modernia ratkaisua logistiikkatarpeisiisi, tämä kohde tarjoaa erinomaiset puitteet.
Ota yhteyttä
Jos tilat kiinnostavat teitä, ottakaa yhteyttä Rauno Nurmeen, puh. +358 50 5522683, rauno.nurmi@logistila.fi
Vapautuu
Kysy
Kerros
1
Lastauslaituri
Ota yhteyttä
Logistila Oy
Kylätie 11-13, 00320 HELSINKI
Rauno Nurmi
Näytä puhelinnumero
050 5522 683
Pyydä lisätietoa
