Myydään liiketilat - Karvia
Kylä-Karviantie 34, Keskusta, 39930 Karvia #10847487
Hyvin hoidettu liikekiinteistö Karvian keskustassa.
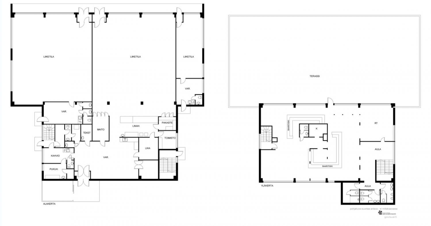
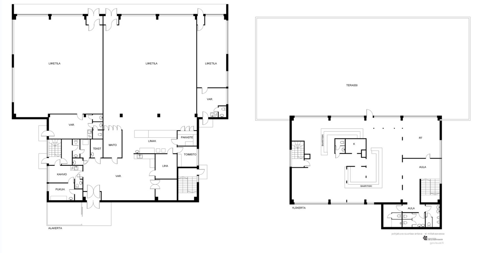
Vankkarakenteinen, vuonna 1983 valmistunut rakennus, jonka kerrosala noin 1020 neliötä.
Kaikki tilat vuokrattu - hyvä vuokratuotto! Tiloissa yhteensä viisi eri vuokralaista. Tarkemmat vuokratiedot, saat erikseen kysymällä.
Rakennuksessa tiloja kolmessa eri kerroksessa. Katutasossa tällä hetkellä hieman pohjapiirustuksesta poiketen neljä liiketilaa. Toisessa kerroksessa yksi, ravintolakäytössä oleva tila, jonka yhteydessä suuri kattoterassi. Ylimmässä kerroksessa ravintolan käytössä olevaa tilaa. Kaikki tilat siistissä ja käyttötarkoitukseensa soveltuvassa kunnossa. Keskuslämmitys. Koneellinen poistoilma. Edessä hyvät parkkitilat.
Tervetuloa tutustumaan!
Tilat = Apteekki 240m2, Yläkerran ravintola 280m2, alakerran ravintola 260m2, Posti 56m2, Yläkerran arkisto/varastohuone noin 60m2. Lämpökeskus. Autotalli.
Ravintoloiden yhteydessä keittiöt. Muissa tiloissa sosiaalitilat.

Kankaanpään Laki ja Kiinteistö Oy
Keskuskatu 61
38700 KANKAANPÄÄ
Näytä puhelinnumero
+35825788991
Tuori Juhani
kiinteistönvälittäjä, kaupanvahvistaja
Näytä puhelinnumero
044-553 0215