Vuokrataan liiketilat - Helsinki
Simonkatu 9, Kamppi, 00100 Helsinki #10847466
Liiketila Simonkentän elävässä Kauppakujassa.
Osoite
Simonkatu 9, 00100 Helsinki
Tilatyyppi
Liiketilaa
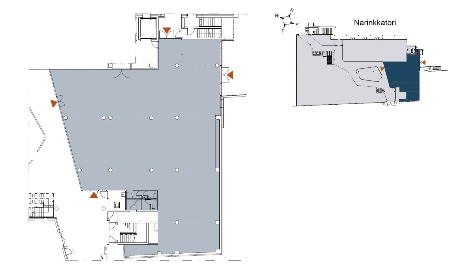
425 m2
Kiinteistö
Tilassa on suuret näyteikkunat sekä vilkkaalle Kampin ja Forumin väliselle kävelykadulle että Narinkkatorin suuntaan. Tila ei sovellu ravintolaksi.
Simonkentän Kauppakuja on uudistunut moderniksi, valoisaksi ja vetovoimaiseksi asiointiympäristöksi, jossa ostokset ja elämykset kohtaavat. Esteetön rakennus palvelee monipuolisesti sekä paikallisia että matkailijoita.
Saavutettavuus on erinomainen: metro, raitiovaunut ja bussit ovat aivan vieressä, ja autoilijoille on suora yhteys Forumin ja Kampin pysäköintihalleihin.
Simonkentän Kauppakuja on uudistunut moderniksi, valoisaksi ja vetovoimaiseksi asiointiympäristöksi, jossa ostokset ja elämykset kohtaavat. Esteetön rakennus palvelee monipuolisesti sekä paikallisia että matkailijoita.
Saavutettavuus on erinomainen: metro, raitiovaunut ja bussit ovat aivan vieressä, ja autoilijoille on suora yhteys Forumin ja Kampin pysäköintihalleihin.
Vapautuu
Heti
Energiatehokkuusluokka
Ei lain edellyttämää energiatodistusta
Näkyvällä paikalla
Ota yhteyttä
Comreal Oy LKV
Ville Laitinen
Näytä puhelinnumero
+358 40 663 8767
P.
Näytä puhelinnumero
020 744 1000
Läkkisepänkuja 6, 00620 Helsinki
Comreal Oy on kasvava ja osaava kiinteistöalan palveluntuottaja kiinteistöjen omistajille ja käyttäjille.
Kiinteistö on sijoittajalle hyvä sijoitus vain, jos siellä on tyytyväiset asiakkaat, eli vuokralaiset. Siksi laadukas asiakaspalvelu on toiminnan lähtökohta.
Pyydä lisätietoa
