Vuokrataan toimistotilat - Espoo
Tekniikantie 4 D, Otaniemi, 02150 Espoo #10847450
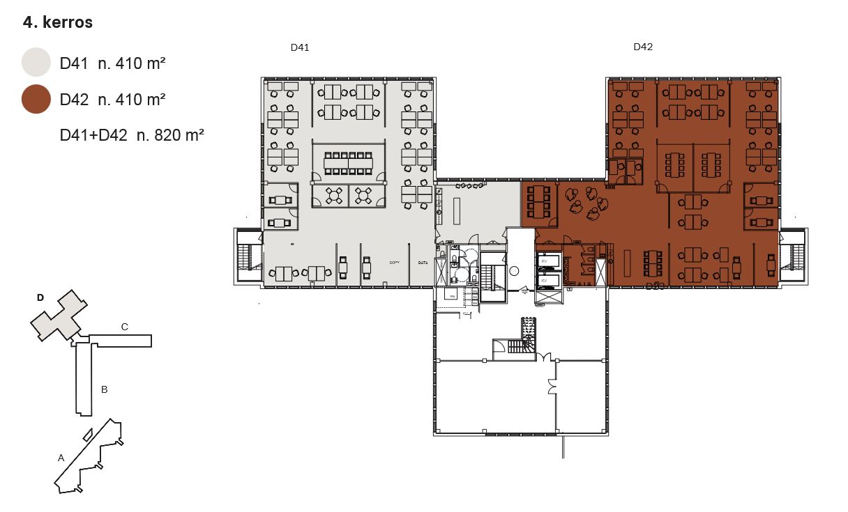
Espoon Otaniemessä tyylikästä ja viihtyisää toimitilaa uudistuneessa Aallonharjassa. Tilat räätälöidään asiakkaan toiveiden mukaisiksi. Ohessa havainnollistavia kuvia kiinteistön muista tiloista.
Aallonharja tarjoaa toimitiloja kaikenkokoisille yrityksille. Kiinteistön palveluihin lukeutuvat aulapalvelu, lounasravintola, sähköautojen- ja polkupyörien latauspisteet ja vuokrausmahdollisuudet, ryhmäliikuntatila, kuivaushuone ja saunatilat sekä ihanat kattoviljelmät. Aallonharjan jätehuolto on hiilineutraali ja sen kaikki kulutussähkö on peräisin uusiutuvista lähteistä.
Metrolle matkaa noin 400 metriä ja bussipysäkille 200. Autopaikkoja yli 400.
Lisätietoja numerosta 020 7290 710. Lisää kohteita osoitteessa www.premises.fi.
Kohteella ei ole lain edellyttämää energiatodistusta tai energialuokka ei tiedossa.Kerros: 4
CRE PREMISES
Puh. Näytä puhelinnumero 020 7290 710
Vantaankoskentie 14
01670 VANTAA
