Vuokrataan toimistotilat, varastotilat - Espoo
Koskelontie 13, Koskelo, 02920 Espoo #10847321
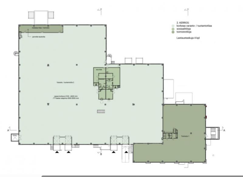
Vuokrattavana varastotilaa logistiikkakiinteistöstä.
Osoite
Koskelontie 13, 02920 Espoo
Tilatyyppi
Toimistotilaa
753,5 m2
Varastotilaa
3747,5 m2
Yhteensä
4501 m2
Kiinteistö
Vuokrattavana varastotilaa logistiikkakiinteistöstä. Varaston vapaa korkeus 4,5 metriä, lattiakantavuus 2000 kg/m2, 3 maantason nosto-ovea, lastausramppi nosto-ovella, 3 lastaustaskua.
Sijainti
Koskelo, Espoo
Pysäköinti
Kiinteistön pihalla.
Palvelut
Alueella lounasravintoloita.
Kulkuyhteydet
-Bussi
-Oma auto
-Oma auto
Vapautuu
Heti
Kerros
1-2
Energiatehokkuusluokka
Ei lain edellyttämää energiatodistusta
Näkyvällä paikalla
Lastauslaituri
Ota yhteyttä
REALIUM OY LKV
Tammasaarenkatu 1, 00180 Helsinki
Vaihde:
Näytä puhelinnumero
010 326 346
Tuomo Mäkelä
tuomo.makela@realium.fi
p.
Näytä puhelinnumero
044 050 1158
Joel Keto
joel.keto@realium.fi
p.
Näytä puhelinnumero
045 317 0330
KAIKKI TILAVAIHTOEHDOT KERRALLA!
SOITA - MEILAA JA TILAA NÄYTTÖ!
Ilmainen palvelu tilanhakijoille.
Kartoitamme parhaat tilavaihtoehdot.
Kaikki kohteet eivät ole netissä.
Pyydä lisätietoa
