Vuokrataan toimistotilat - Oulu
Uusikatu 58 B 17, Keskusta, 90100 Oulu #10847300
Osoite
Uusikatu 58 B 17, 90100 Oulu
Tilatyyppi
Toimistotilaa
85 m2
Vuokra
950,00 €/kk
Vuokraan sisältyy lämpö
Muuta
Vuokrataan Oulun keskustasta remontoitua toimistotilaa hyvältä sijainnilta!
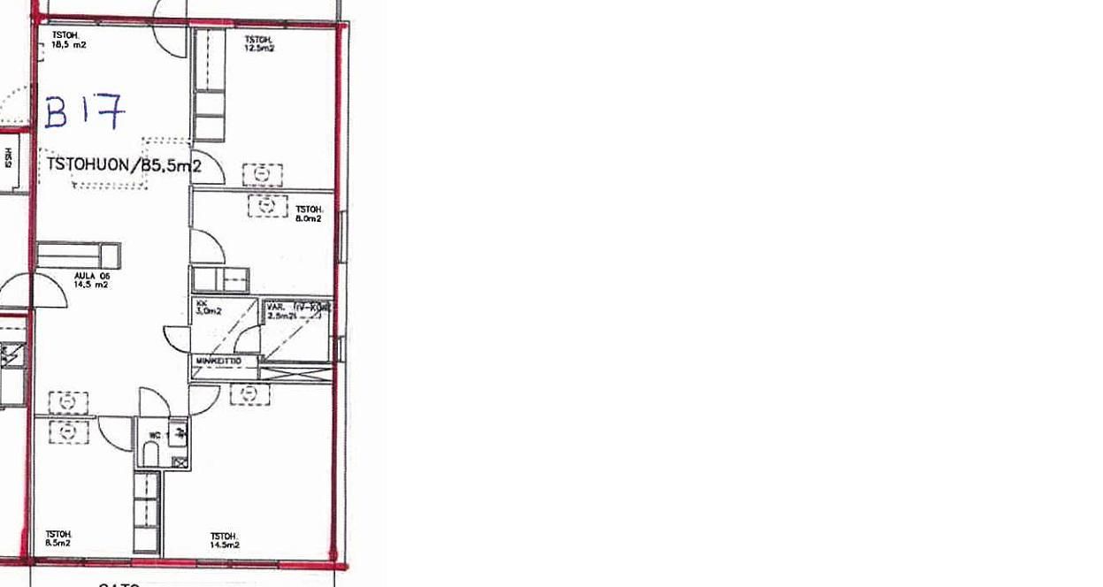
Tämä juuri pintaremontista valmistunut tyylikäs 85,5m2 toimistotila sijaitsee hissillisen talon toisessa kerroksessa. Tilat koostuvat neljästä toimistohuoneesta, keittiöstä, aulasta, vessasta ja isosta lasitetusta parvekkeesta. Tilat ovat siistit ja lisävarustuksena huoneissa on jäähdytyslaitteet.
Tila on heti vapaa vuokrattavaksi.
Vuokra 950 €/kk + alv sisältäen lämmityksen.
Vesi ja käyttösähkö erilliskustannuksena.
Mahdollista vuokrata myös alvittomaan toimintaan!
Ole yhteydessä ja kysy lisää!
Esittelyt ja lisätiedot:
Sami Kortesoja, 0458964803
sami.kortesoja@kiinteistotahkola.fi
Eikö tämä ole sopiva? Kysy muita vaihtoehtojamme!
Tämä juuri pintaremontista valmistunut tyylikäs 85,5m2 toimistotila sijaitsee hissillisen talon toisessa kerroksessa. Tilat koostuvat neljästä toimistohuoneesta, keittiöstä, aulasta, vessasta ja isosta lasitetusta parvekkeesta. Tilat ovat siistit ja lisävarustuksena huoneissa on jäähdytyslaitteet.
Tila on heti vapaa vuokrattavaksi.
Vuokra 950 €/kk + alv sisältäen lämmityksen.
Vesi ja käyttösähkö erilliskustannuksena.
Mahdollista vuokrata myös alvittomaan toimintaan!
Ole yhteydessä ja kysy lisää!
Esittelyt ja lisätiedot:
Sami Kortesoja, 0458964803
sami.kortesoja@kiinteistotahkola.fi
Eikö tämä ole sopiva? Kysy muita vaihtoehtojamme!
Vapautuu
Heti vapaa
Rakennusvuosi
1983
Kerros
2
Ota yhteyttä
Kiinteistö-Tahkola Oy
Lumijoentie 1, 90400 Oulu
Näytä puhelinnumero
0207 480 250
Sami Kortesoja
Näytä puhelinnumero
045 896 4803
Pyydä lisätietoa
