Vuokrataan liiketilat - Helsinki
Hämeentie 135, 00530 Helsinki #10847288
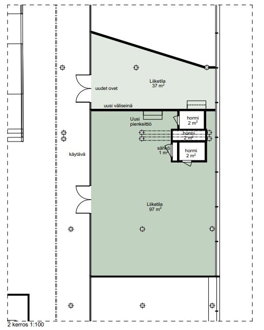
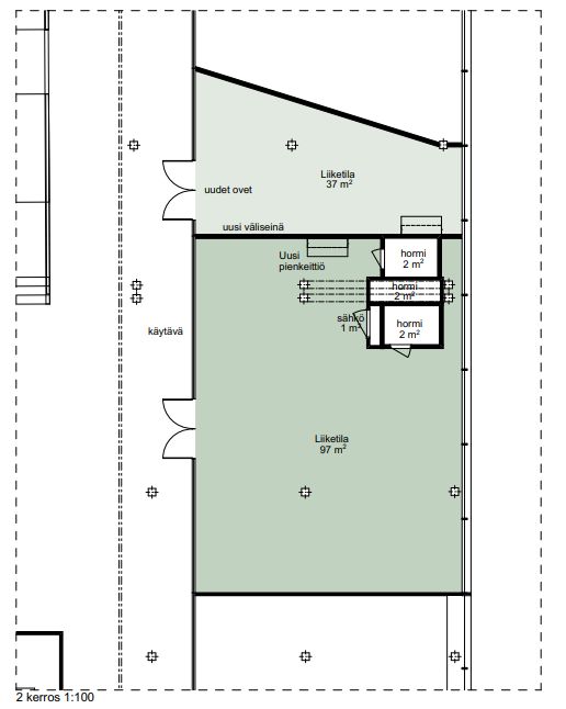
Vuokrataan liiketila galleriakäytävän varrella. Ohessa havainnollistavia kuvia.
Arabia135 tehdaskortteli Helsingin Arabiassa tunnetaan luovien ideoiden ja toteutusten kohtauspaikkana ja osana suomalaisen designin historiaa. Entinen keramiikkatehdas on jo vuosia toiminut modernina design-liikkeiden, pääkonttoreiden ja oppilaitosten yhteisönä.nnLähivuosina luovuuden korttelista jalostuu entistä hienompi kaupallisten ja julkisen palveluiden kokonaisuus. Kortteliin rakennetaan upeita tiloja erikokoisille ja -luonteisille toimijoille, esimerkiksi päivittäistavarakaupalle ja design-alan liikkeille. Sijansa löytävät myös ravintolat, oppilaitokset, hotelli ja museo. Tilat muuntuvat ja luovat mahdollisuuksia kasvaa ja verkottua. Asiakkaatkin ovat lähellä, sillä kortteliin rakennetaan runsaasti asuntoja eri ikäpolvien asukkaille.nnVapaita tiloja voi helposti yhdistellä suuremmiksi kokonaisuuksiksi tai pilkkoa pienemmiksi paloiksi.
Lisätietoja numerosta 020 7290 710. Lisää kohteita osoitteessa www.premises.fi.
Kohteella ei ole lain edellyttämää energiatodistusta tai energialuokka ei tiedossa.Kerros: 2
CRE PREMISES
Puh. Näytä puhelinnumero 020 7290 710
Vantaankoskentie 14
01670 VANTAA
