Vuokrataan toimistotilat - Helsinki
Salmisaarenaukio 2, Salmisaari, 00180 Helsinki #10847239
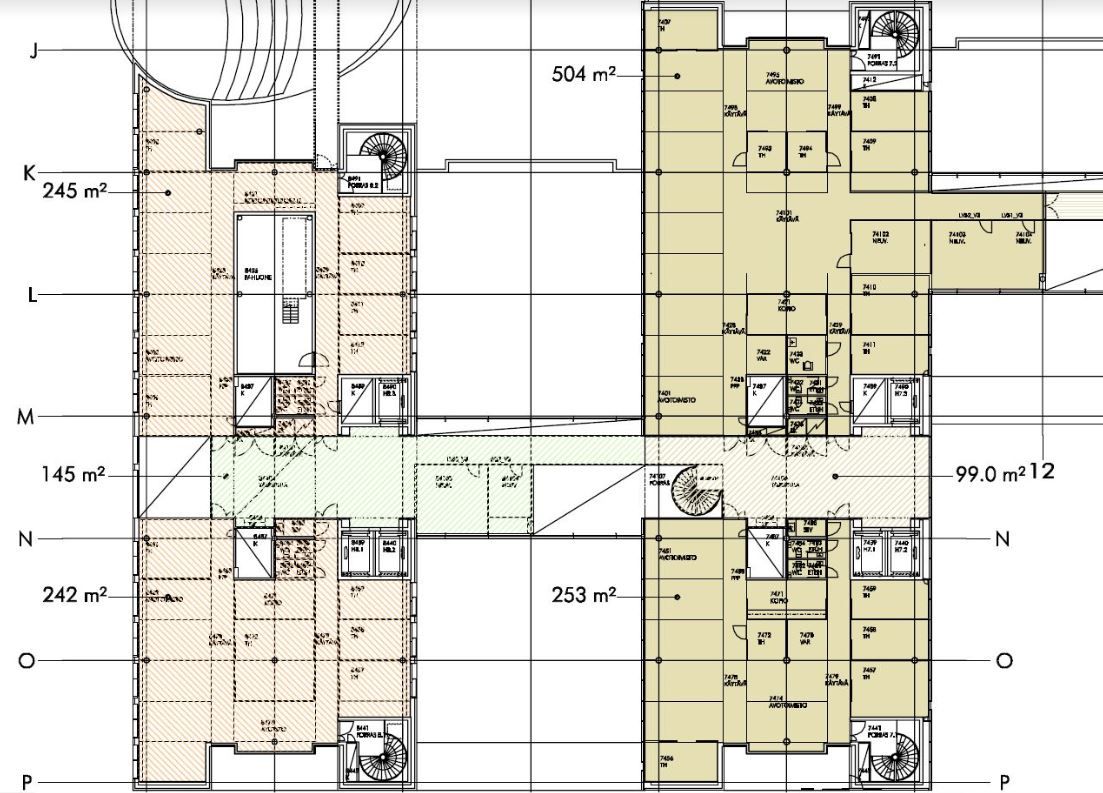
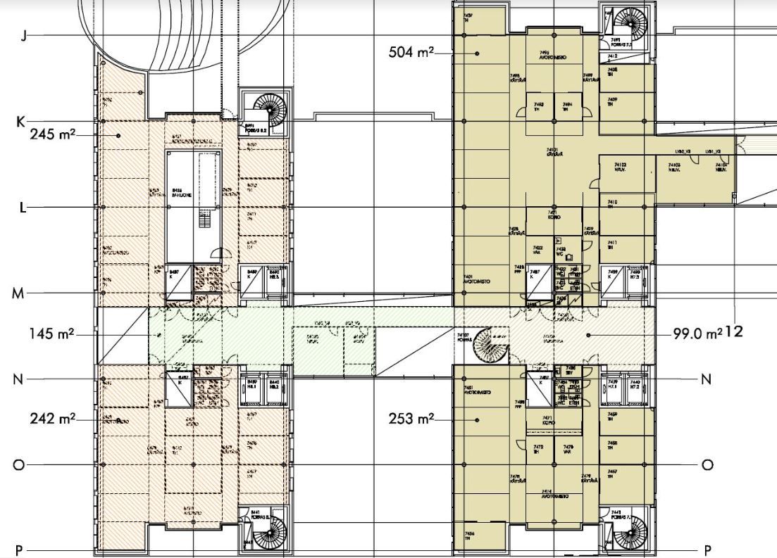
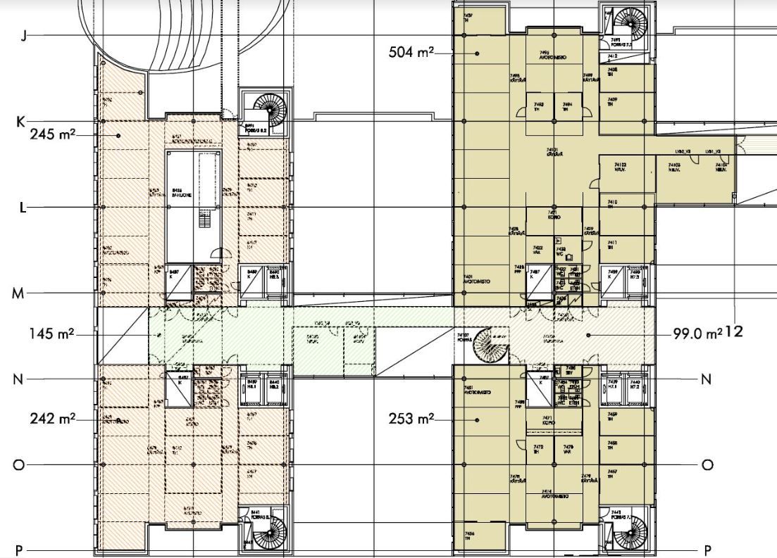
Vuokrataan modernia toimistotilaa, merenrannalta Helsingin Salmisaaresta. Tarvittaessa tilaa voidaan remontoida ja tehdä asiakkaan tarvitsemia muutostöitä. Mahdollista vuokrata myös kerrokset 1-8. jolloin kokonaispinta-alaksi tulee yhteensä n. 10 000 m2. Ohessa havainnollistavia kuvia.
Salmen tilat ovat hyvässä kunnossa ja talotekniikka on nykyaikaista. Muuntojoustaviin tiloihin voidaan toteuttaa monitoimi-, avo- tai kombitoimistotilaa, lisäksi kerroksissa taukotilat ja kokoushuoneet.
Kiinteistössä palvelee aulapalvelu, henkilöstöravintola, kahvila ja kokoustarjoilut sekä erikseen sovittaessa postitus ja siivous.
Salmisaarenaukiolla yhdistyvät kiinteistön laadukkaat palvelut ja upea sijainti meren rannalla.
Lisätiedot ja kohde-esittelyt 020 7290 710, lisää kohteita www.premises.fi
Kohteella ei ole lain edellyttämää energiatodistusta tai energialuokka ei tiedossa.Kerros: 1-8
CRE PREMISES
Puh. Näytä puhelinnumero 020 7290 710
Vantaankoskentie 14
01670 VANTAA
