Vuokrataan/myydään liiketilat - Helsinki
Tunnelitie 10, Etelä-Haaga, 00320 Helsinki #10847215
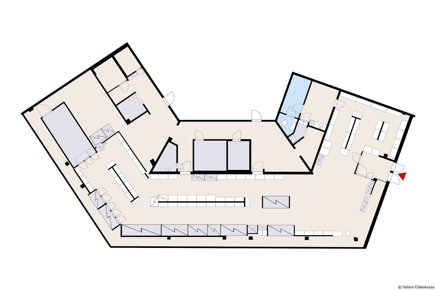
Myydään tai vuokrataan katutason liiketila viihtyisässä Etelä-Haagassa. Avara, koko yksikerroksisen rakennuksen kattava toimitila on toiminut aiemmin päivittäistavarakauppana. Helposti saavutettava sijainti niin julkisilla kuin autollakin: vierestä kulkee suosittu runkolinja 40, Huopalahden juna-asemalle muutaman minuutin kävelymatka, ja lähellä mm. Hämeenlinnanväylä.
Osoite
Tunnelitie 10, 00320 Helsinki
Tilatyyppi
Liiketilaa
420 m2
Kiinteistö
Helsingin Tunnelitie 10
Pysäköinti
Pysäköintipaikkoja kiinteistön pihalla.
Muuta
Tilan ominaisuudet:
Vapautuu
Vapautumassa oleva
Kerros
Katutaso
Katutasossa
Ota yhteyttä
Valion Eläkekassa, Kiinteistöosasto
PL
Näytä puhelinnumero
11 00390
Valio
Näytä puhelinnumero
040 526 6147
Petri Puustinen
Näytä puhelinnumero
040 526 6147
Pyydä lisätietoa
