Vuokrataan liiketilat - Helsinki
Ruoholahdenkatu 14, Hietaniemi, 00180 Helsinki #10847210
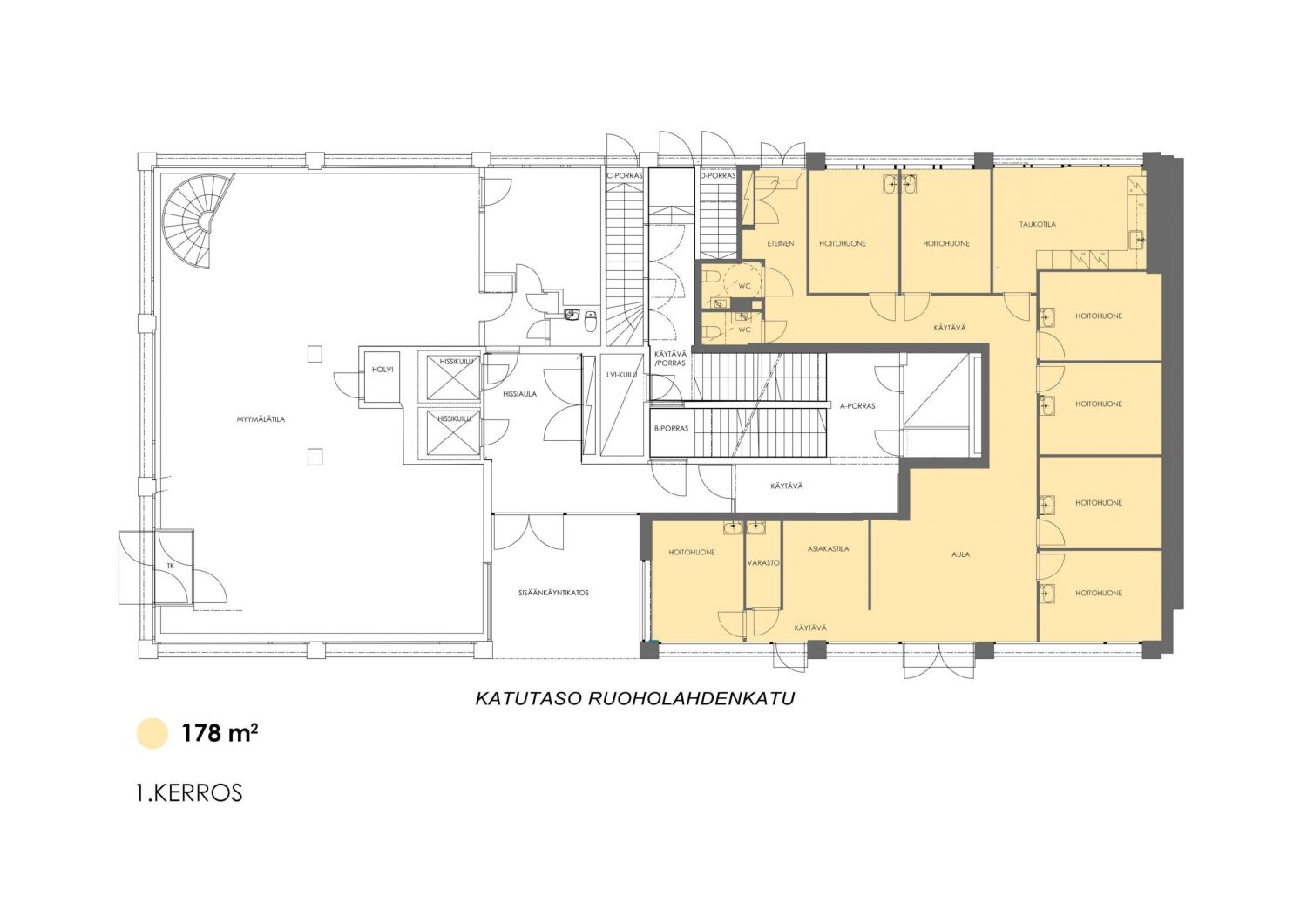
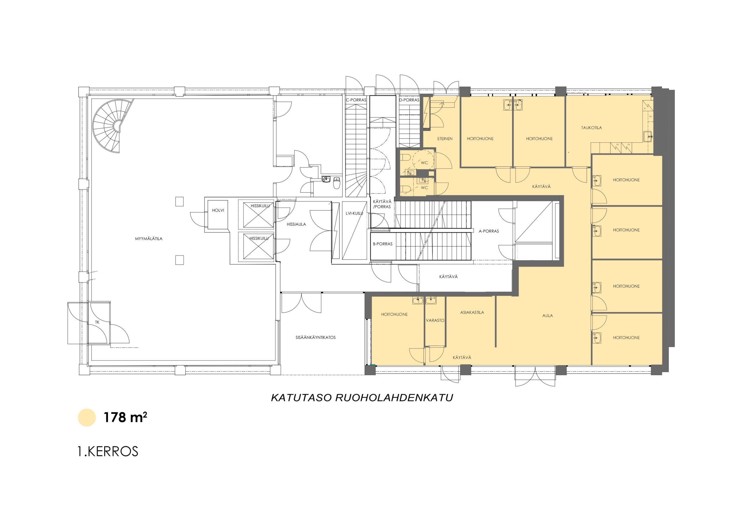
Nyt vapautumassa valoisa liiketila vilkkaan Ruoholahdenkadun varrella. Liiketilassa on taukotilan ja vastaanottoaulan lisäksi seitsemän vesipisteellistä vastaanottohuonetta, joiden ansiosta tila soveltuu erityisen hyvin esimerkiksi erilaiseen kauneudenhoito- ja hyvinvointialan liiketoimintaan.
Kiinteistö sijaitsee mainiolla paikalla Kampissa kohti Ruoholahtea. Kukin kerros on kokoluokkaa 400 m2 mutta jaettavissa kahdelle. Kulmatontin ansiosta toimistorakennuksella on ikkunoita kolmeen suuntaan ja vastapäinen puistoalue takaavat valoisuuden, vehreyden ja miellyttävät maisemat suoraan työpisteen äärestä.
Yhteydet kiinteistölle ovat todella hyvät, Kampin metroasemalle on lyhyt matka, samoin monen bussilinjat tai raitiovaunun pysäkille. Lounasvaihtoehtoja on reilusti lähimaastossa ja mm. Hietalahden kauppahallissa niitä on hurjan monta.
Me Croisettella autamme teitä löytämään teille parhaat tilat! Olemme puolueettomia asiantuntijoita ja tunnemme toimitilamarkkinat, talot sekä tilat vankalla kokemuksella. Meillä on välityksessä kaikki toimitilat ja tiedämme niiden alustavat vuokratasot.
Tehtävämme on tehdä toimitilahaustanne onnistunut ja helppo. Saamme palkkiomme kiinteistönomistajalta, joten sinulle palvelumme on täysin maksuton
Croisette Real Estate Partner
Erottajankatu 5 A 6, 00130 Helsinki
Näytä puhelinnumero
+358 400 585 857
Croisette Vuokraus
Näytä puhelinnumero
+358400585857
