Vuokrataan liiketilat, näyttelytilat - Jyväskylä
Kauppakatu 32, 40100 Jyväskylä #10847175
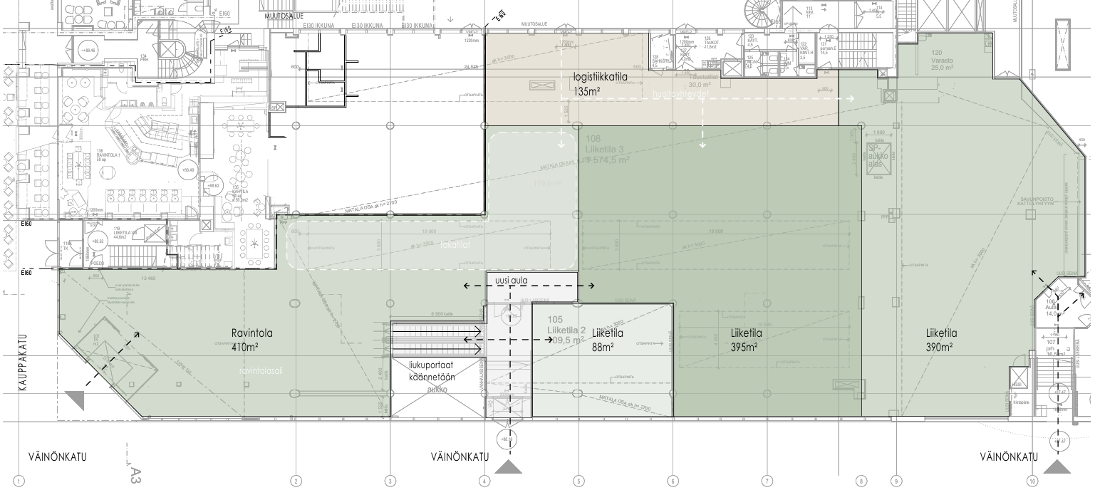
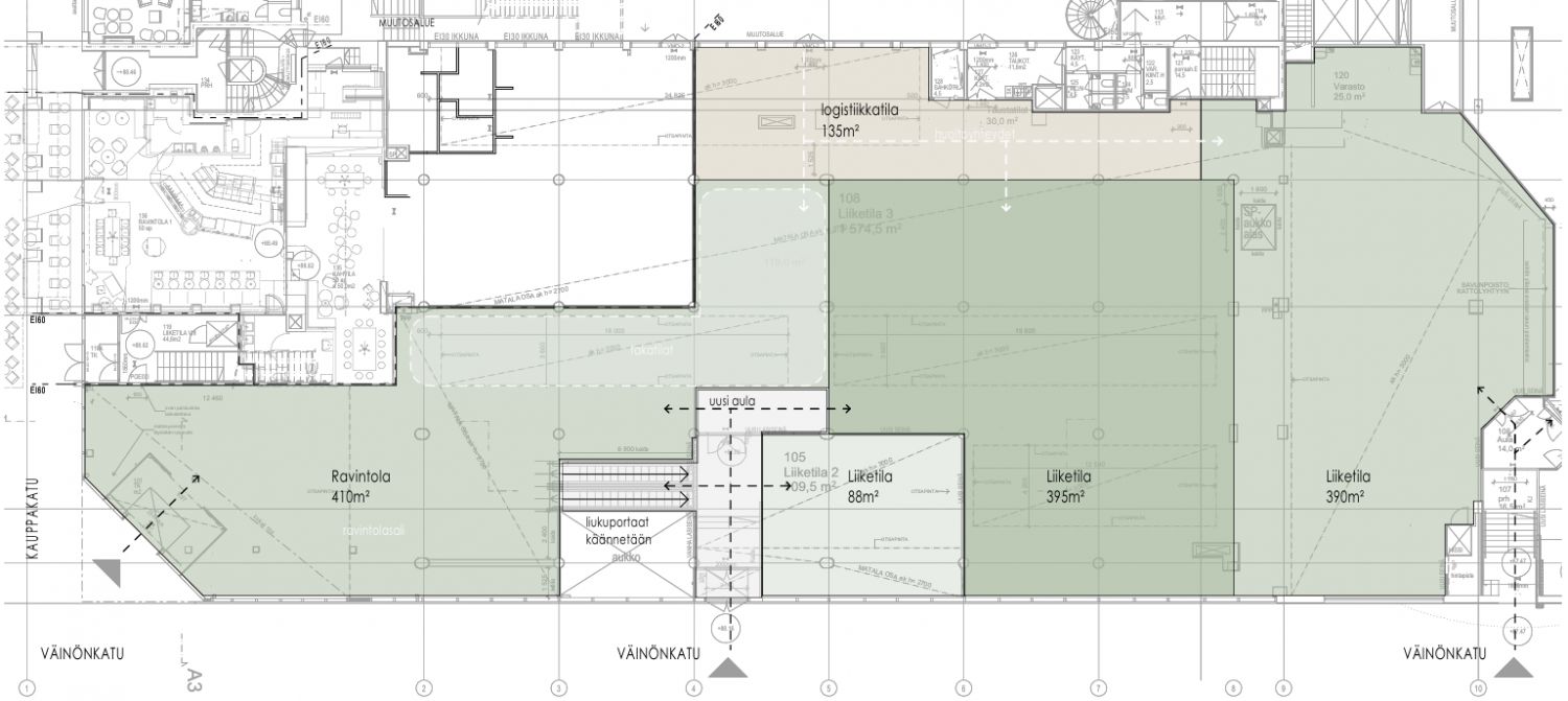
Vuokrataan Jyväskylän ydinkeskustasta yhteensä n. 1330 m2 valoisaa liike - / myymälätilaa erinomaiselta paikalta Kauppakulmasta. Kyseinen liiketila on aiemmin palvellut vaateliike Halosta, ja liiketilassa on paljon näyteikkunatilaa Väinönkadun suuntaan.
Katutasossa liiketilaa on yhteensä n. 1330 m2. Tilat voidaan vuokrata yhdessä ja erikseen, ja niitä voidaan myös lohkoa pienempiin osiin, katso esimerkki tilajaosta pohjakuvasta!
Kaikki keskustan palvelut ja lounasravintolat aivan käden ulottuvilla, ja julkisen liikenteen pysäkki vain sadan metrin päässä. Kiinteistön edessä myös isot pyörätelineet, joihin pyörät lukittavissa rungosta kiinni.
Lisätiedot ja näytöt: Henri Kumpulainen, 040 864 3631, henri.kumpulainen@aveon.fi
Katutasossa
Näkyvällä paikalla
Jaettavissa
Aveon Real Estate Oy
Kauppakatu 18 C 26, 40100 Jyväskylä
Henri Kumpulainen
Puh.
Näytä puhelinnumero
040 864 3631
henri.kumpulainen@aveon.fi
Olemme kiinteistöliiketoiminnan asiantuntija, joka toimii yrittäjämäisesti neuvonantajana kiinteistökaupoissa, toimitilavälittämisessä sekä kiinteistökehityksessä.
Asiakkaitamme ovat kotimaiset ja ulkomaiset kiinteistönomistajat, -sijoittajat sekä tilojen käyttäjät kaikkialla Suomessa.
