Vuokrataan toimistotilat - Helsinki
Ruoholahdenkatu 14, Kamppi, 00180 Helsinki #10847163
Remontoitu, moderni 140 m² toimisto hyvällä sijainnilla Kampissa
Osoite
Ruoholahdenkatu 14, 00180 Helsinki
Tilatyyppi
Toimistotilaa
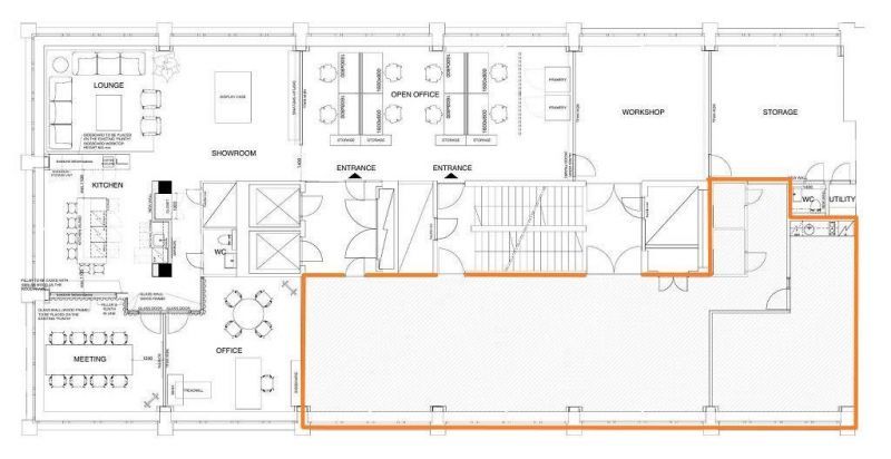
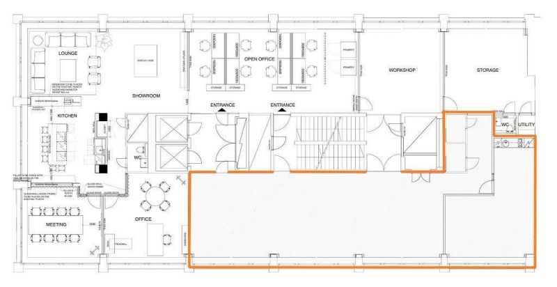
140 m2
Pohjapiirros
Kiinteistö
6. kerroksen toimistossa on avotoimiston lisäksi oma keittiö.
Ruoholahdenkatu 14 on tyylikäs toimistotalo Helsingin Kampissa, aivan Lastenlehdon puiston tuntumassa.
Perinteikkääseen 60-luvun kiinteistöön on remontoitu moderneja ja muunneltavia toimitiloja, jotka täyttävät vaativammatkin tarpeet. Näissä toimistoissa on hyvää arjen fiilistä runsain mitoin, ikkunoista aukeaa avarat näkymät naapuruston puistoihin ja kaupungin kattojen ylle. Rakennuksen aikakauden tyyliin juuri remontoidut aulatilat toivottavat tulijan tervetulleeksi
heti ulko-ovesta sisään astuttaessa.
Vapaat tilat on helppo muokata ja viimeistellä juuri Sinun yrityksesi tarpeisiin ja esimerkiksi brändi-ilmeeseen sopiviksi. Näissä toimistoissa hyvä mieli alkaa jo ovelta ja jatkuu koko päivän.
Ruoholahdenkatu 14:ssa ei tarvitse turhaan tutkailla vapaata ruutua autolleen, sillä parkkitilaa on hyvin saatavilla joko kiinteistön omasta autohallista pihakannen alta tai sisäpihan pysäköintipaikoilta. Tällä hetkellä hallissa ei ole latauspisteitä, mutta niitä on mahdollista toteuttaa tarvittaessa.
Ruoholahdenkatu 14:ssa on puitteet kohdallaan myös työmatkafillarointia ja muuta arjen hyötyreippailua ajatellen. Pyörän voi pysäköidä turvallisesti lukittuun fillariparkkiin kiinteistön kellarikerrokseen, jonka pyöränhuoltopisteellä kulkupelin saa tilanteen sitä vaatiessa helposti viritettyä uudelleen kuntoon. Pyöräilyn jäljiltä kastuneet varusteet voi kätevästi kuivattaa työpäivän aikana kiinteistön kuivauskaapeissa. Kiinteistössä on juuri uusitut suihku- ja pukuhuonetilat, eli työpäivän voi startata miellyttävän raikkaana myös hiukan intensiivisemmin suoritetun taipaleen jälkeen.
Sijainti, sijainti, sijainti
Ruoholahdenkatu 14 sijaitsee aivan Kampin keskustorin vieressä. Alue tarjoaa erinomaiset liikenneyhteydet, jotka tekevät arjesta helpompaa ja työmatkoista sujuvampia. Lähimmät julkisen liikenteen pysäkit sijaitsevat aivan talon edessä, ja lähimmälle metroasemalle Kamppiin matkan taittaa alle kymmenessä minuutissa. Työmatkapyöräilijöillä on vain pari polkaisua baanalle ja autollakin saapuva kurvaa Ruoholahdenkadulle helposti suoraan Länsiväylältä. Mikäli haluat tarjota asiakkaillesi ja työntekijöillesi helposti saavutettavan kohtaamispaikan, on Ruoholahdenkatu 14 loistava valinta!
Kampin alue on erityisen tunnettu monipuolisesta palvelutarjonnastaan. Voit valita lounasruokapaikkoja makusi mukaan kansainvälisestä tarjonnasta, napata kupin kahvia lähikahvilassa tai teetä teehuoneella. Töiden jälkeen on helppo siirtyä viettämään iltaa alueen trendikkäisiin ravintoloihin. Alueelta löytyy lukuisia kauneuteen ja hyvinvointiin sekä kuntoiluun liittyviä palveluja, taidegallerioita ja muita kulttuurielämyksiä. Lyhyen kävelymatkan päässä sijaitsee Hietalahdenrannan palvelut toreineen ja kappahalleineen.
Ekologisuus ja kestävän kehityksen mukaiset toimintamallit ovat Ruoholahdenkatu 14:a arjessa vahvasti läsnä. Esimerkiksi jätehuolto on kokonaan hiilineutraali, sen CO2-päästöt hyvitetään vuosittain pysyviä hiilinieluja metsittämällä. Vuonna 2020 rakennuksen energiatehokkuutta parannettiin kattavassa
energiaremontissa, uusimalla talotekniikka, jonka seurauksena energiankulutus väheni lähes 30 %. Lisäksi kiinteistön kaikki sähkösopimukset ovat hiilidioksidivapaita. Kohteella on voimassa oleva Very Good -tason BREAM sertifiointi, jota uusitaan parhaillaan. Ruoholahdenkatu 14:a valituilla materiaaleilla ja tuotteilla on kaikilla CE-merkintä sekä M1-päästöluokitus.
Ilmoituksen sisäkuvat ovat esimerkkikuvia kiinteistön eri tiloista ja laatutasosta.
Ruoholahdenkatu 14 on tyylikäs toimistotalo Helsingin Kampissa, aivan Lastenlehdon puiston tuntumassa.
Perinteikkääseen 60-luvun kiinteistöön on remontoitu moderneja ja muunneltavia toimitiloja, jotka täyttävät vaativammatkin tarpeet. Näissä toimistoissa on hyvää arjen fiilistä runsain mitoin, ikkunoista aukeaa avarat näkymät naapuruston puistoihin ja kaupungin kattojen ylle. Rakennuksen aikakauden tyyliin juuri remontoidut aulatilat toivottavat tulijan tervetulleeksi
heti ulko-ovesta sisään astuttaessa.
Vapaat tilat on helppo muokata ja viimeistellä juuri Sinun yrityksesi tarpeisiin ja esimerkiksi brändi-ilmeeseen sopiviksi. Näissä toimistoissa hyvä mieli alkaa jo ovelta ja jatkuu koko päivän.
Ruoholahdenkatu 14:ssa ei tarvitse turhaan tutkailla vapaata ruutua autolleen, sillä parkkitilaa on hyvin saatavilla joko kiinteistön omasta autohallista pihakannen alta tai sisäpihan pysäköintipaikoilta. Tällä hetkellä hallissa ei ole latauspisteitä, mutta niitä on mahdollista toteuttaa tarvittaessa.
Ruoholahdenkatu 14:ssa on puitteet kohdallaan myös työmatkafillarointia ja muuta arjen hyötyreippailua ajatellen. Pyörän voi pysäköidä turvallisesti lukittuun fillariparkkiin kiinteistön kellarikerrokseen, jonka pyöränhuoltopisteellä kulkupelin saa tilanteen sitä vaatiessa helposti viritettyä uudelleen kuntoon. Pyöräilyn jäljiltä kastuneet varusteet voi kätevästi kuivattaa työpäivän aikana kiinteistön kuivauskaapeissa. Kiinteistössä on juuri uusitut suihku- ja pukuhuonetilat, eli työpäivän voi startata miellyttävän raikkaana myös hiukan intensiivisemmin suoritetun taipaleen jälkeen.
Sijainti, sijainti, sijainti
Ruoholahdenkatu 14 sijaitsee aivan Kampin keskustorin vieressä. Alue tarjoaa erinomaiset liikenneyhteydet, jotka tekevät arjesta helpompaa ja työmatkoista sujuvampia. Lähimmät julkisen liikenteen pysäkit sijaitsevat aivan talon edessä, ja lähimmälle metroasemalle Kamppiin matkan taittaa alle kymmenessä minuutissa. Työmatkapyöräilijöillä on vain pari polkaisua baanalle ja autollakin saapuva kurvaa Ruoholahdenkadulle helposti suoraan Länsiväylältä. Mikäli haluat tarjota asiakkaillesi ja työntekijöillesi helposti saavutettavan kohtaamispaikan, on Ruoholahdenkatu 14 loistava valinta!
Kampin alue on erityisen tunnettu monipuolisesta palvelutarjonnastaan. Voit valita lounasruokapaikkoja makusi mukaan kansainvälisestä tarjonnasta, napata kupin kahvia lähikahvilassa tai teetä teehuoneella. Töiden jälkeen on helppo siirtyä viettämään iltaa alueen trendikkäisiin ravintoloihin. Alueelta löytyy lukuisia kauneuteen ja hyvinvointiin sekä kuntoiluun liittyviä palveluja, taidegallerioita ja muita kulttuurielämyksiä. Lyhyen kävelymatkan päässä sijaitsee Hietalahdenrannan palvelut toreineen ja kappahalleineen.
Ekologisuus ja kestävän kehityksen mukaiset toimintamallit ovat Ruoholahdenkatu 14:a arjessa vahvasti läsnä. Esimerkiksi jätehuolto on kokonaan hiilineutraali, sen CO2-päästöt hyvitetään vuosittain pysyviä hiilinieluja metsittämällä. Vuonna 2020 rakennuksen energiatehokkuutta parannettiin kattavassa
energiaremontissa, uusimalla talotekniikka, jonka seurauksena energiankulutus väheni lähes 30 %. Lisäksi kiinteistön kaikki sähkösopimukset ovat hiilidioksidivapaita. Kohteella on voimassa oleva Very Good -tason BREAM sertifiointi, jota uusitaan parhaillaan. Ruoholahdenkatu 14:a valituilla materiaaleilla ja tuotteilla on kaikilla CE-merkintä sekä M1-päästöluokitus.
Ilmoituksen sisäkuvat ovat esimerkkikuvia kiinteistön eri tiloista ja laatutasosta.
Vapautuu
Heti
Rakennusvuosi
1966
Kerros
6 / 7
Energiatehokkuusluokka
Ei lain edellyttämää energiatodistusta
Ympäristöluokitus
BREAM Very Good
Näkyvällä paikalla
Hissi
Ota yhteyttä
ScanReal Oy LKV
Opus Business Park
Hitsaajankatu 24
00810 Helsinki
info@scanreal.fi
Puh:
Näytä puhelinnumero
020 730 8830
Sopivat toimitilat yhdellä otolla!
Kartoitamme toimitilatarpeesi ja etsimme yrityksellesi parhaiten sopivat vapaat toimitilat. Koska vuokranantajat maksavat palvelumme, on tämä yrityksellesi veloituksetonta.
OTA YHTEYTTÄ - SOVI NÄYTTÖ!
Kaikki kohteemme eivät ole netissä, kerro tilatarpeesi niin kartoitamme vaihtoehdot.
Palvelumme on tilanhakijalle ilmainen
Pyydä lisätietoa
