Vuokrataan varastotilat - Espoo
Hyttimestarinkuja 4, Kauklahti, Kauklahti, 02780 Espoo #10847156
Lämmintä ja kuivaa varastotilaa Kauklahden teollisuusalueella.
Osoite
Hyttimestarinkuja 4, Kauklahti, 02780 Espoo
Tilatyyppi
Varastotilaa
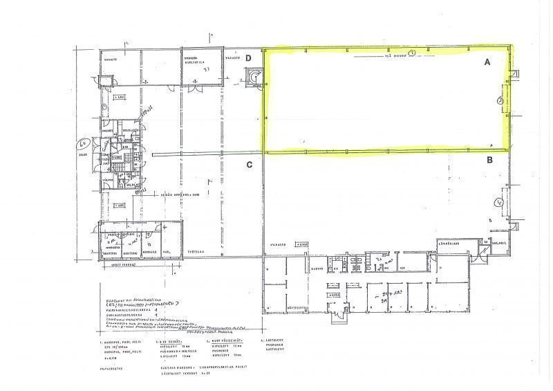
535 m2
Kiinteistö
Vuokrataan Kauklahden teollisuusalueelta lämmin katutason varastotila 535 m². Tilaan johtaa sähkökäyttöinen nosto-ovi (kork. 4,28 m ja lev. 4 m). Tilaan myös käyntiovi.
Hallin ylin korkeus 5,88 m ja alin korkeus 5,36 m.
Hallin pituus 35,9 m ja leveys n. 14,9 m.
Tilassa yläikkunat ja varastohyllyjä hallin seinillä. Keskiosan saa tarvittaessa varastohyllyillä tai ilman hyllyjä.
Tilassa wc, erillinen vesipiste sekä toimistokoppi.
Hallissa ei ole lattiakaivoa.
Autopaikkoja kiinteistön edessä ja takapihalla.
Vuokrakauden alkuun 3 kuukautta 50 %:a alennettua vuokraa.
Hallin ylin korkeus 5,88 m ja alin korkeus 5,36 m.
Hallin pituus 35,9 m ja leveys n. 14,9 m.
Tilassa yläikkunat ja varastohyllyjä hallin seinillä. Keskiosan saa tarvittaessa varastohyllyillä tai ilman hyllyjä.
Tilassa wc, erillinen vesipiste sekä toimistokoppi.
Hallissa ei ole lattiakaivoa.
Autopaikkoja kiinteistön edessä ja takapihalla.
Vuokrakauden alkuun 3 kuukautta 50 %:a alennettua vuokraa.
Pysäköinti
Pysäköinti ja ulkopihan käyttö hallin leveydeltä = n.15 metriä.
Vapautuu
Heti
Energiatehokkuusluokka
Ei lain edellyttämää energiatodistusta
Katutasossa
Ota yhteyttä
Comreal Oy LKV
Tuula Leikas
Näytä puhelinnumero
040 531 3722
P.
Näytä puhelinnumero
020 744 1000
Läkkisepänkuja 6, 00620 Helsinki
Comreal Oy on kasvava ja osaava kiinteistöalan palveluntuottaja kiinteistöjen omistajille ja käyttäjille.
Kiinteistö on sijoittajalle hyvä sijoitus vain, jos siellä on tyytyväiset asiakkaat, eli vuokralaiset. Siksi laadukas asiakaspalvelu on toiminnan lähtökohta.
Pyydä lisätietoa
