Vuokrataan toimistotilat - Espoo
Aallonharja, Tekniikantie 4, Otaniemi, 02150 Espoo #10847150
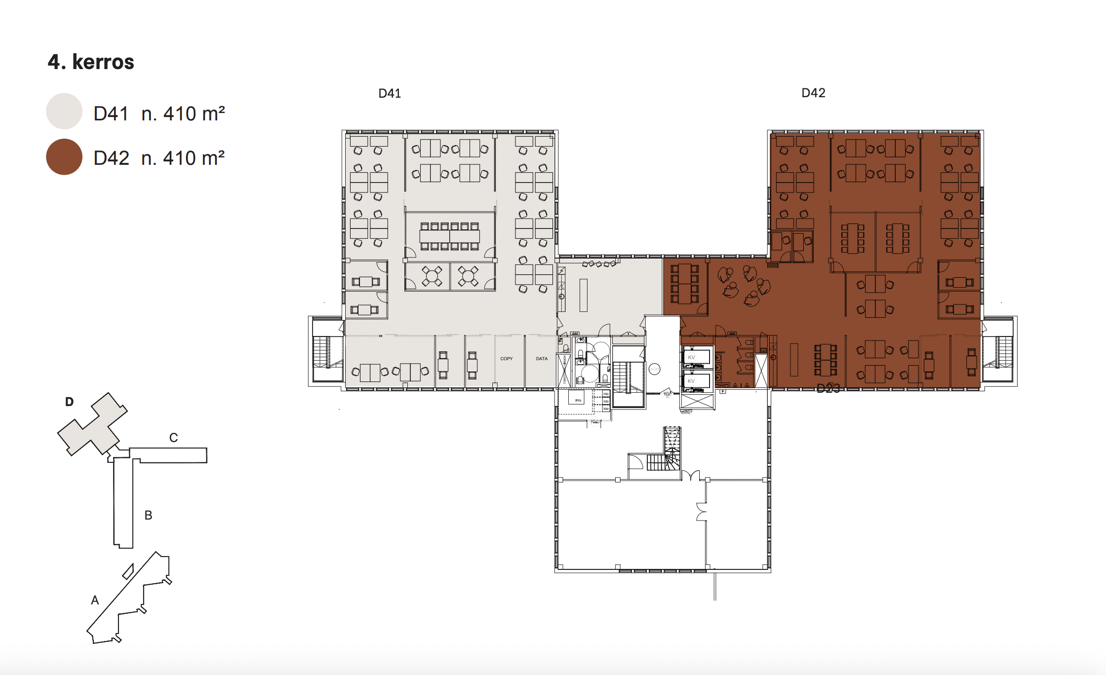
Modernisoitu 410 m² toimisto keskeisellä paikalla Espoon Otaniemessä
Osoite
Tekniikantie 4, 02150 Espoo
Tilatyyppi
Toimistotilaa
410 m2
Pohjapiirros
Kiinteistö
Modernisoitua toimistotilaa Espoon Otaniemessä.
Kiinteistö sijaitsee keskeisellä paikalla Otaniemessä, Kehä 1:n välittömässä läheisyydessä. Monipuolinen yrityspuisto on lähellä Otaniemen tiedeyhteisöjä, innovaatioita ja teknologia-alan yrityksiä. Kaunis merellinen luonto, kulttuuri sekä lyhyet etäisyydet Helsingin keskustaan ja lentokentälle luovat erinomaiset puitteet kiinteistössä toimiville yrityksille.
Tilat voidaan räätälöidä käyttäjän toiveiden mukaisesti huonetiloksi, avotilaksi tai näiden yhdistelmäksi.
Kiinteistössä monipuoliset palvelut, mm:
- aulapalvelu
- lukuisia kokous- ja luokkatiloja
- saunatilat
Kiinteistö sijaitsee keskeisellä paikalla Otaniemessä, Kehä 1:n välittömässä läheisyydessä. Monipuolinen yrityspuisto on lähellä Otaniemen tiedeyhteisöjä, innovaatioita ja teknologia-alan yrityksiä. Kaunis merellinen luonto, kulttuuri sekä lyhyet etäisyydet Helsingin keskustaan ja lentokentälle luovat erinomaiset puitteet kiinteistössä toimiville yrityksille.
Tilat voidaan räätälöidä käyttäjän toiveiden mukaisesti huonetiloksi, avotilaksi tai näiden yhdistelmäksi.
Kiinteistössä monipuoliset palvelut, mm:
- aulapalvelu
- lukuisia kokous- ja luokkatiloja
- saunatilat
Pysäköinti
Parkkikansi ja pihapaikkoja
Palvelut
B-talon 6. kerroksessa näyttävät kokoustilat ja pohjakerroksessa lisää luokka- ja kokoustiloja. Henkilöstöravintola A-talossa.
Vapautuu
Heti
Kerros
4 / 6
Energiatehokkuusluokka
Ei lain edellyttämää energiatodistusta
Näkyvällä paikalla
Hissi
Ota yhteyttä
ScanReal Oy LKV
Opus Business Park
Hitsaajankatu 24
00810 Helsinki
info@scanreal.fi
Puh:
Näytä puhelinnumero
020 730 8830
Sopivat toimitilat yhdellä otolla!
Kartoitamme toimitilatarpeesi ja etsimme yrityksellesi parhaiten sopivat vapaat toimitilat. Koska vuokranantajat maksavat palvelumme, on tämä yrityksellesi veloituksetonta.
OTA YHTEYTTÄ - SOVI NÄYTTÖ!
Kaikki kohteemme eivät ole netissä, kerro tilatarpeesi niin kartoitamme vaihtoehdot.
Palvelumme on tilanhakijalle ilmainen
Pyydä lisätietoa
