Vuokrataan toimistotilat - Espoo
Aallonharja, Tekniikantie 4, Otaniemi, 02150 Espoo #10847149
Modernisoitu 254 m² toimisto keskeisellä paikalla Espoon Otaniemessä
Osoite
Tekniikantie 4, 02150 Espoo
Tilatyyppi
Toimistotilaa
254 m2
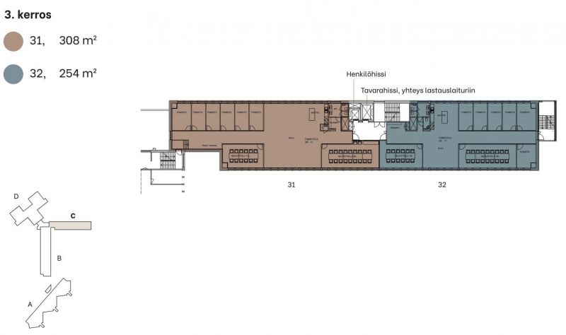
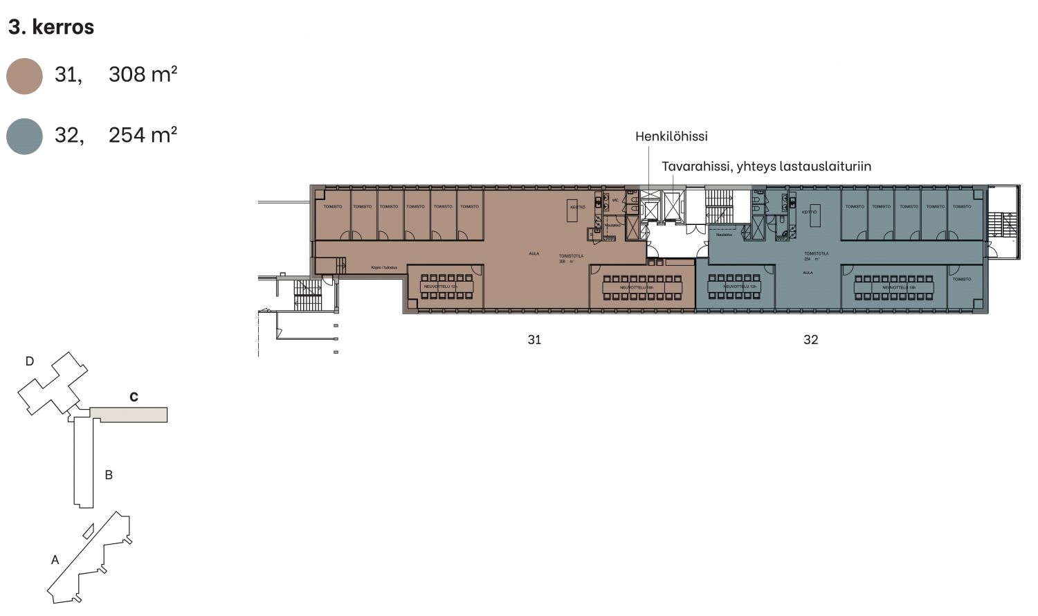
Pohjapiirros
Kiinteistö
254 m² toimisto joka sijaitsee C-talon 3. kerroksessa.
Tila on betonilla, joten se rakennetaan käyttäjän toiveiden mukaisesti. Tilaan on tavarahissiyhteys lastauslaiturilta.
Ilmoituksen sisäkuvat ovat yleiskuvia kiinteistön eri tiloista.
Kiinteistö sijaitsee keskeisellä paikalla Otaniemessä, Kehä 1:n välittömässä läheisyydessä. Monipuolinen yrityspuisto on lähellä Otaniemen tiedeyhteisöjä, innovaatioita ja teknologia-alan yrityksiä. Kaunis merellinen luonto, kulttuuri sekä lyhyet etäisyydet Helsingin keskustaan ja lentokentälle luovat erinomaiset puitteet kiinteistössä toimiville yrityksille.
Kiinteistössä monipuoliset palvelut, mm aulapalvelu, lukuisia kokous- ja luokkatiloja ja saunatilat
Tila on betonilla, joten se rakennetaan käyttäjän toiveiden mukaisesti. Tilaan on tavarahissiyhteys lastauslaiturilta.
Ilmoituksen sisäkuvat ovat yleiskuvia kiinteistön eri tiloista.
Kiinteistö sijaitsee keskeisellä paikalla Otaniemessä, Kehä 1:n välittömässä läheisyydessä. Monipuolinen yrityspuisto on lähellä Otaniemen tiedeyhteisöjä, innovaatioita ja teknologia-alan yrityksiä. Kaunis merellinen luonto, kulttuuri sekä lyhyet etäisyydet Helsingin keskustaan ja lentokentälle luovat erinomaiset puitteet kiinteistössä toimiville yrityksille.
Kiinteistössä monipuoliset palvelut, mm aulapalvelu, lukuisia kokous- ja luokkatiloja ja saunatilat
Pysäköinti
Parkkikansi ja pihapaikkoja
Palvelut
B-talon 6. kerroksessa näyttävät kokoustilat ja pohjakerroksessa lisää luokka- ja kokoustiloja. Henkilöstöravintola A-talossa.
Vapautuu
Heti
Kerros
3 / 6
Energiatehokkuusluokka
Ei lain edellyttämää energiatodistusta
Näkyvällä paikalla
Hissi
Ota yhteyttä
ScanReal Oy LKV
Opus Business Park
Hitsaajankatu 24
00810 Helsinki
info@scanreal.fi
Puh:
Näytä puhelinnumero
020 730 8830
Sopivat toimitilat yhdellä otolla!
Kartoitamme toimitilatarpeesi ja etsimme yrityksellesi parhaiten sopivat vapaat toimitilat. Koska vuokranantajat maksavat palvelumme, on tämä yrityksellesi veloituksetonta.
OTA YHTEYTTÄ - SOVI NÄYTTÖ!
Kaikki kohteemme eivät ole netissä, kerro tilatarpeesi niin kartoitamme vaihtoehdot.
Palvelumme on tilanhakijalle ilmainen
Pyydä lisätietoa
