Vuokrataan liiketilat - Helsinki
Ruoholahdenkatu 14, Kamppi, 00100 Helsinki #10847073
Liiketilaa Helsingin keskustassa, Kampin ostoskeskuksen läheisyydessä.
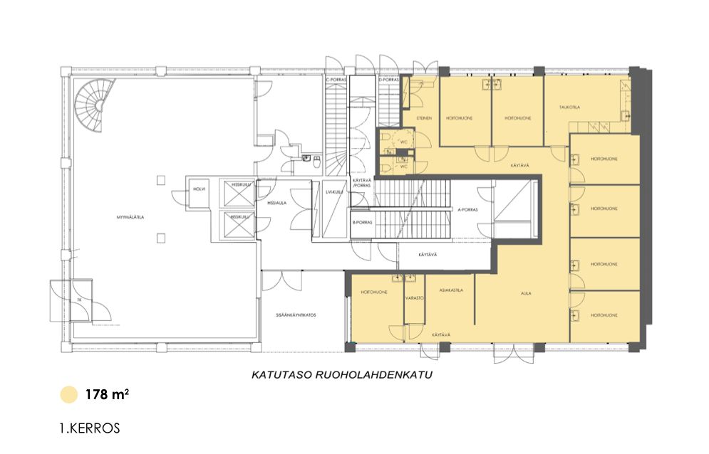
Tämä 178 m² liiketila sijaitsee kiinteistön katutasossa. Liiketilassa on taukotilan ja vastaanottoaulan lisäksi seitsemän vesipisteellistä vastaanottohuonetta, joiden ansiosta tila soveltuu erityisen hyvin esimerkiksi erilaiseen kauneudenhoito- ja hyvinvointialan liiketoimintaan.
Ruoholahdenkatu 14 on liike- ja toimistokiinteistö Helsingin Kampissa. Se on peruskorjattu täysin vuonna 2005, jonka lisäksi kiinteistön rakennusautomaatio on uusittu vuonna 2020. Tämän seurauksena energiatehokkuus on parantunut. Kiinteistössä käytetään vihreää sähköä ja hiilineutraalia jätehuoltoa. Kiinteistöllä on myös Breeam In-Use sertifikaatti Very Good tasolla. Kellarikerroksessa on pyöräparkit ja pukuhuonetilat työmatkapyöräilijöitä varten. Alueella on lukuisia lounasravintoloita ja keskustan palvelut sijaitsevat aivan kivenheiton päässä.
Kysy lisää numerosta 044 723 4700 tai info@bref.fi. Palvelumme on tilanhakijoille ilmainen.
Bureau Real Estate Finland Oy
Lars Sonckin kaari 16, 02600 Espoo
Näytä puhelinnumero
0447234700
Bureau Real Estate Finland Oy
https://www.bref.fi