Vuokrataan toimistotilat - Helsinki
Itämerenkatu 1, Ruoholahti, 00180 Helsinki #10847015
Vuokrattavana valoisaa, tasokasta ja laadukasta toimistotilaa.
Osoite
Itämerenkatu 1, 00180 Helsinki
Tilatyyppi
Toimistotilaa
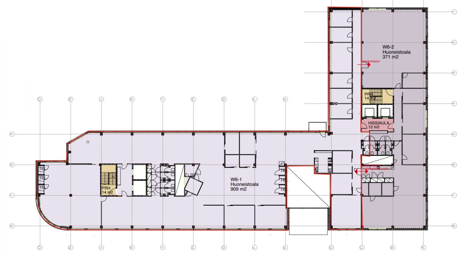
909 m2
Kiinteistö
Vuokrattavana valoisaa, tasokasta ja laadukasta toimistotilaa. Kiinteistön tehokkaat toimistotilat soveltuvat avotoimistotilasta aina huonetoimistotilaksi vuokralaisen toivomusten mukaisesti.
Sijainti
Ruoholahti, Helsinki
Pysäköinti
Kiinteistössä parkkihalli.
Palvelut
-Lounasravintola
-Vuokrattavia neuvottelu- ja kokoustiloja
-Saunatilat
-Vuokrattavia neuvottelu- ja kokoustiloja
-Saunatilat
Kulkuyhteydet
-Bussi
-Metro
-Raitiovaunu
-Oma auto
-Metro
-Raitiovaunu
-Oma auto
Vapautuu
Heti
Kerros
6 / 9
Energiatehokkuusluokka
Ei lain edellyttämää energiatodistusta
Näkyvällä paikalla
Hissi
Ota yhteyttä
REALIUM OY LKV
Tammasaarenkatu 1, 00180 Helsinki
Vaihde:
Näytä puhelinnumero
010 326 346
Tuomo Mäkelä
tuomo.makela@realium.fi
p.
Näytä puhelinnumero
044 050 1158
Joel Keto
joel.keto@realium.fi
p.
Näytä puhelinnumero
045 317 0330
KAIKKI TILAVAIHTOEHDOT KERRALLA!
SOITA - MEILAA JA TILAA NÄYTTÖ!
Ilmainen palvelu tilanhakijoille.
Kartoitamme parhaat tilavaihtoehdot.
Kaikki kohteet eivät ole netissä.
Pyydä lisätietoa
