Vuokrataan toimistotilat - Helsinki
Ruoholahdenkatu 8, Kamppi, 00101 Helsinki #10847005
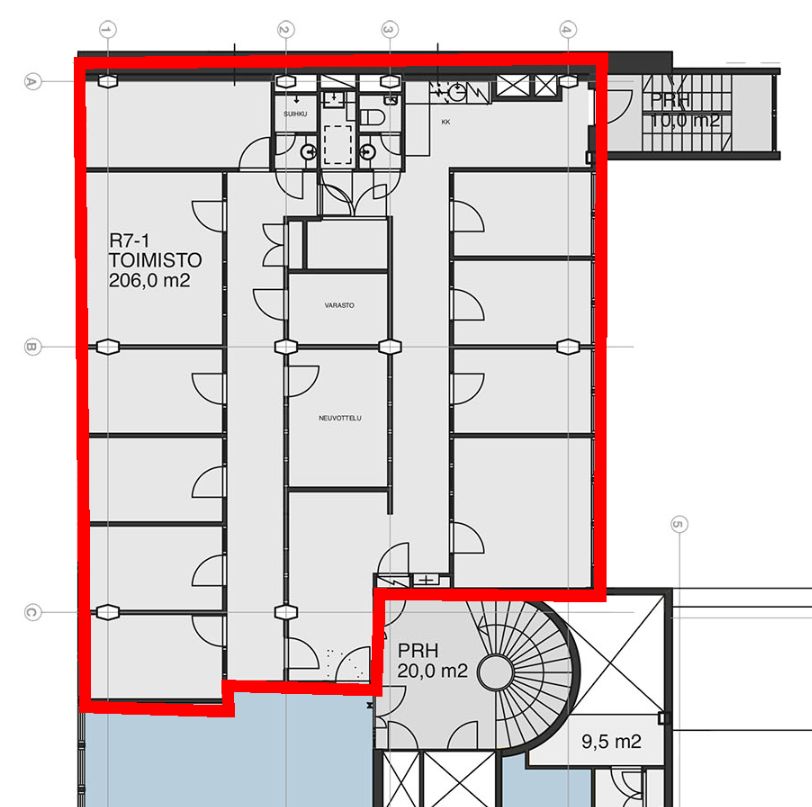
Vuokrattavana 4. kerroksen siistiä, hyväkuntoista ja tehokasta toimistotilaa.
Osoite
Ruoholahdenkatu 8, 00101 Helsinki
Tilatyyppi
Toimistotilaa
206 m2
Kiinteistö
Vuokrattavana 4. kerroksen siistiä, hyväkuntoista ja tehokasta toimistotilaa. Tila on muunneltavissa käyttäjien tarpeisiin sopiviksi niin avokonttoriksi kuin myös huonetoimistoksi. Rakennuksessa koneellinen ilmanvaihto ja jäähdytys.
Sijainti
Kamppi, Helsinki
Pysäköinti
Rakennuksen sisäpihalla ja kellarissa on yhteensä noin 50 pysäköintipaikkaa.
Palvelut
Keskustan palvelut.
Kulkuyhteydet
-Metro
-Raitiovaunu
-Bussi
-Oma auto
-Raitiovaunu
-Bussi
-Oma auto
Vapautuu
Heti
Kerros
4
Energiatehokkuusluokka
Ei lain edellyttämää energiatodistusta
Näkyvällä paikalla
Hissi
Ota yhteyttä
REALIUM OY LKV
Tammasaarenkatu 1, 00180 Helsinki
Vaihde:
Näytä puhelinnumero
010 326 346
Tuomo Mäkelä
tuomo.makela@realium.fi
p.
Näytä puhelinnumero
044 050 1158
Joel Keto
joel.keto@realium.fi
p.
Näytä puhelinnumero
045 317 0330
KAIKKI TILAVAIHTOEHDOT KERRALLA!
SOITA - MEILAA JA TILAA NÄYTTÖ!
Ilmainen palvelu tilanhakijoille.
Kartoitamme parhaat tilavaihtoehdot.
Kaikki kohteet eivät ole netissä.
Pyydä lisätietoa
