Vuokrataan toimistotilat, liiketilat, näyttelytilat - Helsinki
Niittyläntie 5, Metsälä, 00620 Helsinki #10847003
Vuokrataan katutason toimisto- näyttely tms. tila Metsälästä
Osoite
Niittyläntie 5, 00620 Helsinki
Tilatyyppi
Toimistotilaa
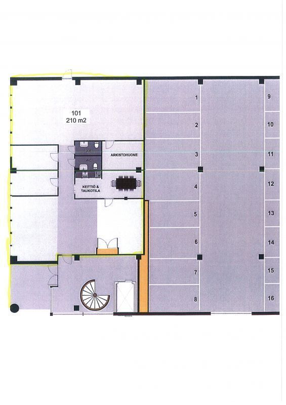
210 m2
Liiketilaa
210 m2
Näyttelytilaa
210 m2
Yhteensä
210 m2
Kiinteistö
Vuokrataan katutason toimisto-, näyttely-, pien työ/varastotila näkyvältä paikalta Metsälästä. Tila jakaantunut avotilaan ja toimistohuoneisiin. Tilassa 2 wc:ta ja moderni keittiö. Tilat ovat hyvässä, siistissä kunnossa ja vapaana käyttöön. Tilaan sisäänkäynti Niittyläntien puolelta.
Sijainti
Keskeinen sijainti Metsälässä takaa helpot kulkuyhteydet joka suuntaan. Kiinteistö on helposti saavutettavissa julkisilla kulkuvälineillä kuin autollakin.
Pysäköinti
Kiinteistön edessä on parkkipaikkoja.
Palvelut
Runsaat lounaspaikat ovat vain pienen kävelymatkan päässä kiinteistöstä. Neste K-Metsälä aivan vieressä sekä K-supermarket Mustapekka 800 metrin päässä.
Kulkuyhteydet
Bussipysäkki 100 m
Juna-asema 500 m
Raitiovaunupysäkki 900 m
Lentoasema 14 km
Juna-asema 500 m
Raitiovaunupysäkki 900 m
Lentoasema 14 km
Vapautuu
Heti
Energiatehokkuusluokka
Ei lain edellyttämää energiatodistusta
Näkyvällä paikalla
Ota yhteyttä
Comreal Oy LKV
Anna-Maija Hyppönen
Näytä puhelinnumero
050 534 8001
P.
Näytä puhelinnumero
020 744 1000
Läkkisepänkuja 6, 00620 Helsinki
Comreal Oy on kasvava ja osaava kiinteistöalan palveluntuottaja kiinteistöjen omistajille ja käyttäjille.
Kiinteistö on sijoittajalle hyvä sijoitus vain, jos siellä on tyytyväiset asiakkaat, eli vuokralaiset. Siksi laadukas asiakaspalvelu on toiminnan lähtökohta.
Pyydä lisätietoa
