Vuokrataan liiketilat - Helsinki
Tyynylaavantie 20, Vuosaari, 00980 Helsinki #10846994
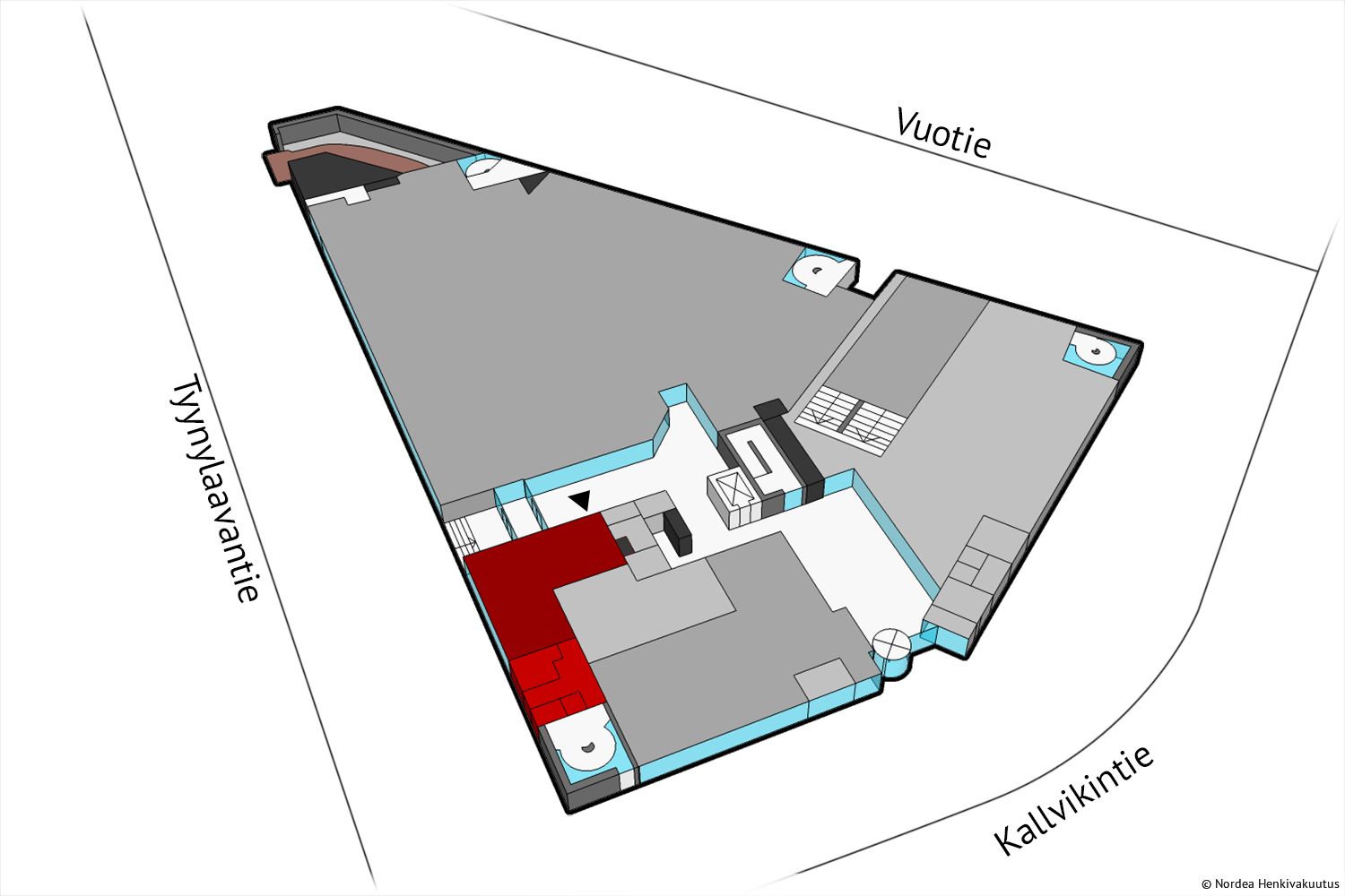
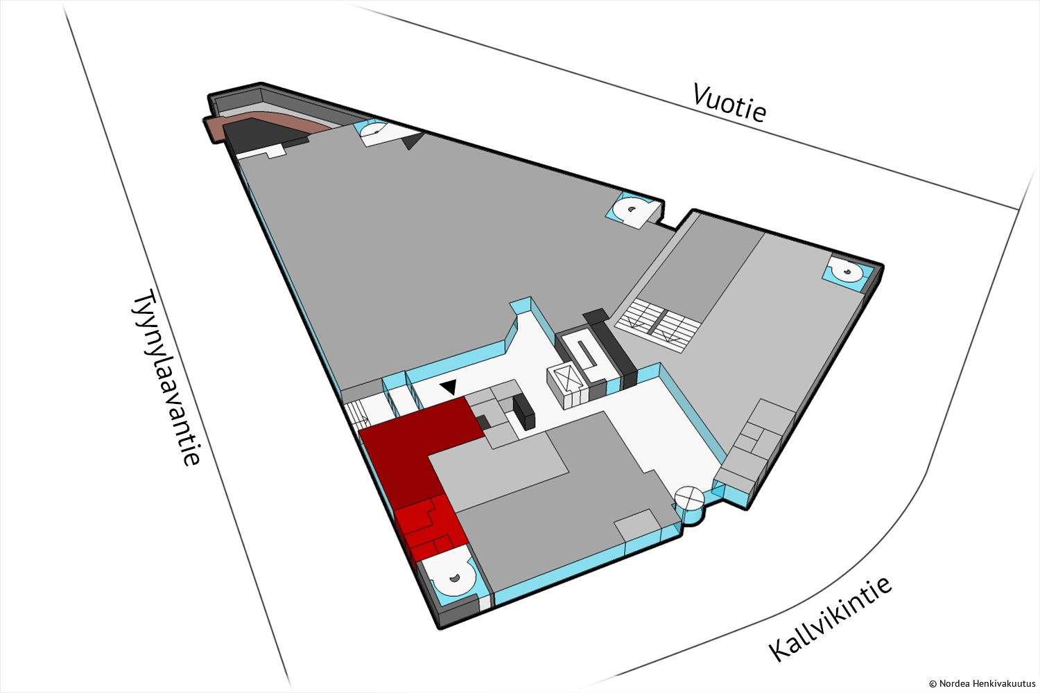
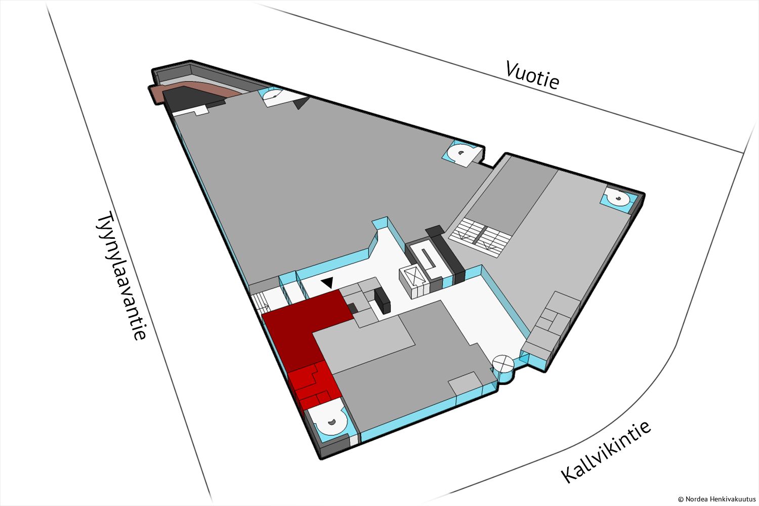
Vuokrataan ensimmäisen kerroksen liiketila, joka soveltuu ravintola- tai kahvilatoimintaan. Tilassa valmiina rasvakaivo ja -kanavat. Tila on muuntojoustava ja se voidaan remontoida myös toimistoksi tai muuksi liiketilaksi. Kohde sijaitsee hyvällä paikalla Helsingin Vuosaaressa, metroaseman läheisyydessä. Ota yhteyttä ja kysy lisätietoja!
Nordea Henkivakuutus Suomi Oy:n omistamissa kiinteistössä käytetään vihreää kiinteistösähköä.
Nordea Henkivakuutus Suomi Oy
Aleksis Kiven katu 9, Helsinki 00020 NORDEA
Soili Nevalainen
Näytä puhelinnumero
050 364 0586
Nordea Henkivakuutus Suomi Oy vuokraa toimitiloja omistamistaan ja hallinnoimistaan sijoituskiinteistöistä pääkaupunkiseudulla. Toimitilavuokrauksessa Nordea Henkivakuutuksen yhteistyökumppani on Newsec Asset Management.
http://nordeahenkivakuutustoimitilat.fi