Vuokrataan toimistotilat - Helsinki
Ratamestarinkatu 7, Pasila, 00520 Helsinki #10846874
Valoisaa ja modernia toimistotilaa Pasilan Lime Parkissa.
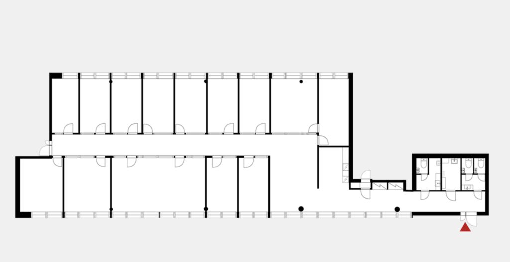
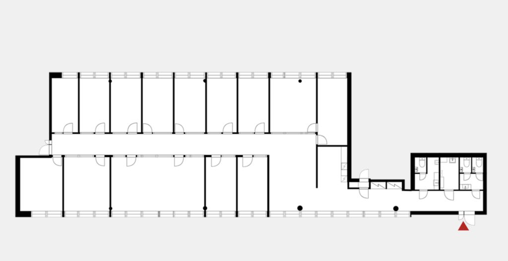
Tämä 352m² toimisto sijaitsee kiinteistön 7. kerroksessa. Toimisto on pääasiassa huoneellista, ja siinä on omat keittiö- ja wc-tilat. Kuvat ovat yleiskuvia kiinteistön tiloista.
Ratamestarinkatu 7 eli Lime Park on toimistokiinteistö, joka sijaitsee hyvin näkyvällä paikalla vilkkaiden liikennereittien varrella Helsingin Pasilassa. Työmatkat taittuvat hyvin autolla, bussilla tai junalla keskeisen sijantinsa ansiosta. Talossa hyvät palvelut, kokouskeskus, henkilöstöravintola ja edustustilat. Autopaikkoja vuokrattavissa pysäköintihallista.
Kysy lisää numerosta 044 723 4700 tai info@bref.fi. Palvelumme on tilanhakijoille ilmainen.
Hissi
Bureau Real Estate Finland Oy
Lars Sonckin kaari 16, 02600 Espoo
Näytä puhelinnumero
0447234700
Bureau Real Estate Finland Oy
https://www.bref.fi