Vuokrataan toimistotilat - Oulu
Uusikatu 66, Heinäpää, 90120 Oulu #10846810
Osoite
Uusikatu 66, 90120 Oulu
Tilatyyppi
Toimistotilaa
400 m2
Vuokra
5000,00 €/kk
Vuokraan sisältyy vesi, lämpö
Muuta
Kiinteistö Oy Kuntotalosta tarjolla monipuolisesti erilaisia tiloja. Talosta löytyy tilaa kellarista kuudenteen kerrokseen. Tiloja on mahdollista remontoida ja muuntautuvat monenlaiseen käyttöön. Tiloja löytyy mm. majoituskäyttöön, hoiva- ja hoitotiloiksi, toimistoksi, liikuntatiloiksi ja moneen muuhun käyttötarkoitukseen.
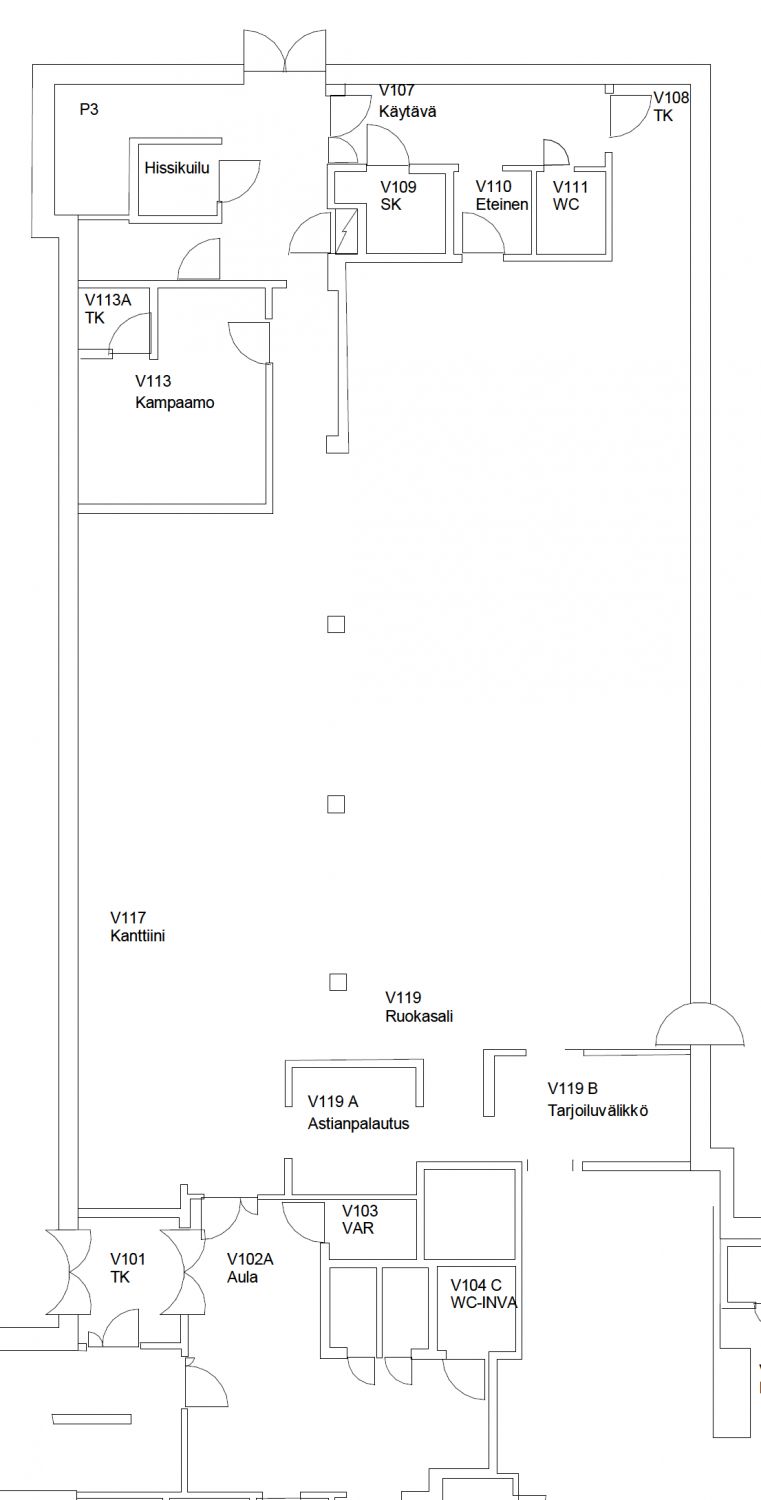
Tämän ilmoituksen kuvat ja neliömäärät Uusikadun puoleisesta ensimmäisestä kerroksesta, josta löytyy n. 350m2 avoin ruokasalina toiminut tila, vessa sekä n. 25m2 liiketila / toimisto ja aulassa yhteisvessat. Tilat voi vuokrata kokonaisuudessaan tai osittain.
Jos tilat voisivat soveltua teidän tarpeisiin, ole yhteydessä ja käydään tarpeenne ja tilan tarjoamat mahdollisuudet läpi!
Alla listaus vuokrattavista tiloista. Tiloja vuokrataan myös osissa, tiloja vuokrataan n. 50m2 alkaen. Tilat sijaitsevat kahdessa rakennuksessa, jotka yhteydessä toisiinsa kerroksissa kellarista kolmanteen kerrokseen.
Vapaat tilat Uusikatu 66:
- kellari, 784 m2, hoitotiloja, allashuone kahdella saunaosastolla, kaksi erillistä pukuhuone- ja pesutilaa, varastotiloja
- 1. kerros 400m2, n. 350m2 avoin ruokasalina toiminut tila, vessa sekä n. 25m2 liiketila / toimisto, aulassa yhteisvessat
- 2. kerros 675m2, 9kpl 2hlö huoneita omalla pesuhuoneella, iso pesutila, kaksi isoa salia, 6 toimistohuonetta, taukotila aulan yhteydessä, 3 vessaa, 4 varastoa, siivouskomero
- 3. kerros 675m2, 9kpl 2hlö huoneita omalla pesuhuoneella, pesutila, kaksi isoa salia/avotilaa, 5 toimistohuonetta, taukotila, 2 vessaa, 5 varastoa, siivouskomero
- 5. kerros n. 60m2, avotilaa, vessa ja toimistohuone
Vapaat tilat Isokatu 63:
- kellari, 633,5m2, liikuntasali 128,9m2 ja pukuhuoneet, hoitohuoneita, uima-allasosasto kahdella saunaosastolla
- 3. kerros, 442m2, 14kpl huonetta koot 9,3-20m2, iso sali 33+32,1m2, 3 vessaa, 2 varastoa
- 4. kerros, 420m2, 16kpl 2hlö 17,9-22,2 m2 majoitushuoneita omalla pesuhuoneella
Talossa koneellinen tulo- ja poistoilmanvaihto ja lämmöntalteenotto. Talo on kaukolämmössä ja lämmitys vesikiertoisilla pattereilla.
Vuokrataso noin 12,5 €/m2 tilan koosta riippuen, autopaikat 50 €/kk. Sähköstä veloitus 0,8€/m2, lämmitys ja vesi sisältyvät vuokraan. Hintoihin lisätään arvonlisävero, jos vuokralaisen toiminta on arvonlisäverollista.
Tiloja voidaan vuokrata alvillisena ja alvittomana.
Soita tai jätä yhteydenottopyyntö ja sovi esittely tai kysy lisätietoja!
Eikö tämä ole sopiva? Kysy muita vaihtoehtojamme!
#hoivatila #hoitotila #majoitustila #fysioterapia #ruokala #liikuntatila #liikuntasali #jumppasali #tanssisali #uima-allas #sauna
Tämän ilmoituksen kuvat ja neliömäärät Uusikadun puoleisesta ensimmäisestä kerroksesta, josta löytyy n. 350m2 avoin ruokasalina toiminut tila, vessa sekä n. 25m2 liiketila / toimisto ja aulassa yhteisvessat. Tilat voi vuokrata kokonaisuudessaan tai osittain.
Jos tilat voisivat soveltua teidän tarpeisiin, ole yhteydessä ja käydään tarpeenne ja tilan tarjoamat mahdollisuudet läpi!
Alla listaus vuokrattavista tiloista. Tiloja vuokrataan myös osissa, tiloja vuokrataan n. 50m2 alkaen. Tilat sijaitsevat kahdessa rakennuksessa, jotka yhteydessä toisiinsa kerroksissa kellarista kolmanteen kerrokseen.
Vapaat tilat Uusikatu 66:
- kellari, 784 m2, hoitotiloja, allashuone kahdella saunaosastolla, kaksi erillistä pukuhuone- ja pesutilaa, varastotiloja
- 1. kerros 400m2, n. 350m2 avoin ruokasalina toiminut tila, vessa sekä n. 25m2 liiketila / toimisto, aulassa yhteisvessat
- 2. kerros 675m2, 9kpl 2hlö huoneita omalla pesuhuoneella, iso pesutila, kaksi isoa salia, 6 toimistohuonetta, taukotila aulan yhteydessä, 3 vessaa, 4 varastoa, siivouskomero
- 3. kerros 675m2, 9kpl 2hlö huoneita omalla pesuhuoneella, pesutila, kaksi isoa salia/avotilaa, 5 toimistohuonetta, taukotila, 2 vessaa, 5 varastoa, siivouskomero
- 5. kerros n. 60m2, avotilaa, vessa ja toimistohuone
Vapaat tilat Isokatu 63:
- kellari, 633,5m2, liikuntasali 128,9m2 ja pukuhuoneet, hoitohuoneita, uima-allasosasto kahdella saunaosastolla
- 3. kerros, 442m2, 14kpl huonetta koot 9,3-20m2, iso sali 33+32,1m2, 3 vessaa, 2 varastoa
- 4. kerros, 420m2, 16kpl 2hlö 17,9-22,2 m2 majoitushuoneita omalla pesuhuoneella
Talossa koneellinen tulo- ja poistoilmanvaihto ja lämmöntalteenotto. Talo on kaukolämmössä ja lämmitys vesikiertoisilla pattereilla.
Vuokrataso noin 12,5 €/m2 tilan koosta riippuen, autopaikat 50 €/kk. Sähköstä veloitus 0,8€/m2, lämmitys ja vesi sisältyvät vuokraan. Hintoihin lisätään arvonlisävero, jos vuokralaisen toiminta on arvonlisäverollista.
Tiloja voidaan vuokrata alvillisena ja alvittomana.
Soita tai jätä yhteydenottopyyntö ja sovi esittely tai kysy lisätietoja!
Eikö tämä ole sopiva? Kysy muita vaihtoehtojamme!
#hoivatila #hoitotila #majoitustila #fysioterapia #ruokala #liikuntatila #liikuntasali #jumppasali #tanssisali #uima-allas #sauna
Vapautuu
Heti vapaa
Rakennusvuosi
1986
Kerros
1
Ota yhteyttä
Kiinteistö-Tahkola Oy
Lumijoentie 1, 90400 Oulu
Näytä puhelinnumero
0207 480 250
Henri Huotari
Näytä puhelinnumero
0405418854
Pyydä lisätietoa
