Vuokrataan toimistotilat - Helsinki
Himotie 3, Pitäjänmäki, 00380 Helsinki #10846798
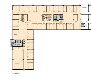
Nyt vuokrattavissa on iso toimistotila rakennuksen neljännessä kerroksessa. Tila on mahdollista laajentaa koko kerroksen laajuiseksi Valimotie 10:n puolelle ja näin kasvattaa kokonaispinta-alaa jopa 5 000 m²:iin. Tila tullaan remontoimaan tarpeidesi mukaan, joten siitä saadaan juuri sinun käyttöösi sopiva kokonaisuus.
Hiomotie 3:sta löytyy räätälöitäviä ja monipuolisia toimistotiloja. Hiomotie 3 kuuluu Valimo Centeriin, josta löytyy laajat palvelut ravintoloineen, neuvottelutiloineen sekä kuntosaleineen ja saunatiloineen. Kiinteistö sijaitsee Pitäjänmäen Valimo-alueella hyvien kulkuyhteyksien äärellä, lähellä juna-asemaa ja kevyen liikenteen reittejä. Alue tunnetaan elinvoimaisesta yritysympäristöstään sekä kattavista palveluistaan, jotka tekevät siitä toimivan ja suositun sijainnin moderneille toimistoille.
Me Croisettella autamme teitä löytämään teille parhaat tilat! Olemme puolueettomia asiantuntijoita ja tunnemme toimitilamarkkinat, talot sekä tilat vankalla kokemuksella. Meillä on välityksessä kaikki toimitilat ja tiedämme niiden alustavat vuokratasot.
Tehtävämme on tehdä toimitilahaustanne onnistunutta ja helppoa. Saamme palkkiomme kiinteistönomistajalta, joten sinulle palvelumme on täysin maksuton. Jos kiinnostuit, ota yhteyttä sähköpostitse osoitteeseen vuokraus@croisette.fi tai soita numeroon +358 4 00585857.
Croisette Real Estate Partner
Erottajankatu 5 A 6, 00130 Helsinki
Näytä puhelinnumero
+358 400 585 857
Croisette Vuokraus
Näytä puhelinnumero
+358400585857
