Vuokrataan tuotantotilat, varastotilat, työtilat - Siilinjärvi
Mekaanikonkuja 4, 70900 Siilinjärvi #10846789
Vuokrataan nykyaikaista ja siistiä hallitilaa Siilinjärven Toivalassa. Hyvä sijainti takaa nopea liikennöinnin, VT5:n liittymille vain noin 5 minuutin ajoaika.
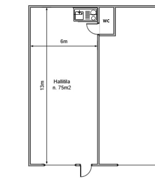
Vuokrattava halli noin 13 x 6 metriä (pit x lev) rakennuksen päädyssä. Vapaa korkeus noin 5 metriä, tilaan nosto-ovi 3 x 4,5 metriä (l x k).
Hallissa öljynerotuskaivot, autonpesu mahdollista. Koneellinen tulo- ja poisto IV, lämmitys maalämmöllä (lattialämmitys).
Hallissa myös minikeittiö ja wc.
Osoite
Mekaanikonkuja 4, 70900 Siilinjärvi
Tilatyyppi
Tuotantotilaa
75 m2
Varastotilaa
75 m2
Työtilaa
75 m2
Yhteensä
75 m2
Vuokra
Kysy lisätietoja
Kiinteistö
Vuosina 2014/2016 valmistunut rakennus. Asfaltoitu piha-alue.
Sijainti
Noin 4 km VT5:n liittymiltä.
Pysäköinti
Pistokepaikkoja vuokrattavissa hallin edustalta.
Vapautuu
01.12.2025
Ota yhteyttä
Suomen Toimitila-asiantuntijat Oy
Vuorikatu 26 A, 70100 KUOPIO
Näytä puhelinnumero
044 3636 198
Tanja Nylander
Pyydä lisätietoa
