Vuokrataan toimistotilat - Helsinki
Valimotie 13, Pitäjänmäki, 00380 Helsinki #10846787
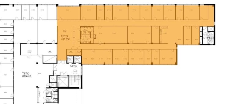
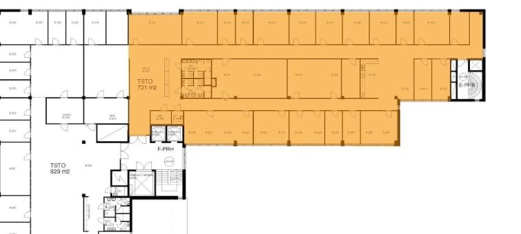
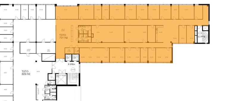
Nyt vuokratavissa 731 m² toimisto Helsingin Pitäjänmäellä. Tila sijaitsee toisessa kerroksessa ja sisältää sekä yksittäisiä toimistohuoneita että avointa tilaa. Lisäksi toteutamme tilaan tarvittaessa remontit ja tilamuutokset vuokralaisen toiveiden mukaisesti. Rappukäytävässä henkilöhissin lisäksi myös tilava tavarahissi, joka helpottaa muuttoa.
Valimo Centerin toimistot Pitäjänmäellä taipuvat moneen tarpeeseen. Kokonaisuus kattaa peräti neljä monipuolista kiinteistöä, joissa palvelut ovat kattavat sisältäen muun muassa aulapalvelut, lounasravintolan, laajat pysäköinti mahdollisuudet, vuokrattavat kokoustilat, kuntosali ja postituspalvelut. Lisäksi kiinteistöstä löytyy oma sauna.
Me Croisettella autamme teitä löytämään teille parhaat tilat! Olemme puolueettomia asiantuntijoita ja tunnemme toimitilamarkkinat, talot sekä tilat vankalla kokemuksella. Meillä on välityksessä kaikki toimitilat ja tiedämme niiden alustavat vuokratasot.
Tehtävämme on tehdä toimitilahaustanne onnistunutta ja helppoa. Saamme palkkiomme kiinteistönomistajalta, joten sinulle palvelumme on täysin maksuton. Jos kiinnostuit, ota yhteyttä sähköpostitse osoitteeseen vuokraus@croisette.fi tai soita numeroon +358 4 00585857.
Croisette Real Estate Partner
Erottajankatu 5 A 6, 00130 Helsinki
Näytä puhelinnumero
+358 400 585 857
Croisette Vuokraus
Näytä puhelinnumero
+358400585857
