Vuokrataan - Tampere
Aleksanterinkatu 31, Keskusta, 33100 Tampere #10846767
Osoite
Aleksanterinkatu 31, 33100 Tampere
Muuta
Kulmassa sijaitseva liiketila erinomaisella näkyvyydellä vapaana
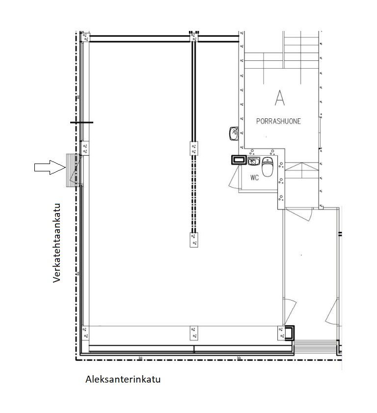
Aleksanterinkadun ja Verkatehtaankadun kulmassa, Pizzeria Napolin naapurissa, liiketila vapaana.
Erinomaisen hyvä näkyvyys useasta suunnasta. Liiketila sijaitsee vilkkaasti liikennöidyssä risteyksessä. Vieressä suosittu Napoli, jonne jonottaessaan ihmiset eivät voi olla huomaamatta tätä.
Sisäänkäynti Verkatehtaan puolelta jalkakäytävältä ja toinen sisäänkäynti rapusta, Napolin sisäänkäyntiovea vastapäätä.
Suuret lähes koko tilan korkuiset ikkunat kahteen suuntaan. Tila avaraa, jossa kevytrakenteinen seinä. Lisäksi pieni wc. Tilaa ollaan valmiita yhteisesti vuokralaisen kanssa suunniteltaessa remontoimaan ja muokkaamaan toimintaan sopivaksi.
Vuokran määrästä neuvotellaan.
Tämä pitää nähdä omin silmin!
Ota yhteyttä: jani.kaisto@kiinteistotahkola.fi, p. 040 960 6424
Aleksanterinkadun ja Verkatehtaankadun kulmassa, Pizzeria Napolin naapurissa, liiketila vapaana.
Erinomaisen hyvä näkyvyys useasta suunnasta. Liiketila sijaitsee vilkkaasti liikennöidyssä risteyksessä. Vieressä suosittu Napoli, jonne jonottaessaan ihmiset eivät voi olla huomaamatta tätä.
Sisäänkäynti Verkatehtaan puolelta jalkakäytävältä ja toinen sisäänkäynti rapusta, Napolin sisäänkäyntiovea vastapäätä.
Suuret lähes koko tilan korkuiset ikkunat kahteen suuntaan. Tila avaraa, jossa kevytrakenteinen seinä. Lisäksi pieni wc. Tilaa ollaan valmiita yhteisesti vuokralaisen kanssa suunniteltaessa remontoimaan ja muokkaamaan toimintaan sopivaksi.
Vuokran määrästä neuvotellaan.
Tämä pitää nähdä omin silmin!
Ota yhteyttä: jani.kaisto@kiinteistotahkola.fi, p. 040 960 6424
Vapautuu
01.03.2026
Rakennusvuosi
1959
Kerros
1
Ota yhteyttä
Kiinteistö-Tahkola Oy
Kuokkamaantie 4, 33800 Tampere
Näytä puhelinnumero
044 705 0522
Jani Kaisto
Näytä puhelinnumero
040 960 6424
Pyydä lisätietoa
