Vuokrataan liiketilat - Helsinki
Porkkalankatu 7, Ruoholahti, 00180 Helsinki #10846694
Vuokrattavana liiketilaa Ruoholahdessa.
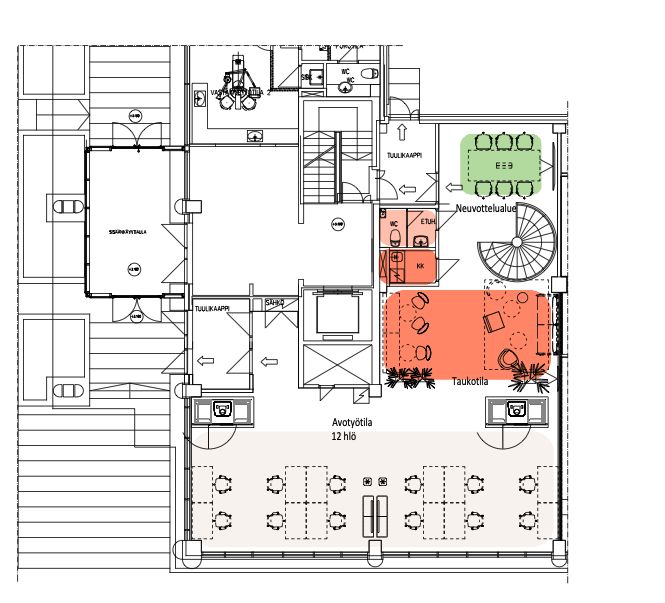
Tämä 169 m² liiketila sijaitsee vilkkaan Porkkalankadun varrella, katutasossa. Tila on avonainen, ja siihen kuuluu oma minikeittiö ja wc-tilat. Ei sovellu ravintolatoimintaan.
Porkkalankatu 7 on toimisto- ja liikekiinteistö, joka sijaitsee hyvällä paikalla Ruoholahdessa.
Sen tilat on joustavasti muokattavissa uuden vuokralaisen tarpeita vastaavaksi.
Se on helposti saavutettavissa omalla autolla ja julkisella liikenteellä. Sen läheisyydessä on myös Ruoholahden kauppakeskuksen monipuoliset palvelut.
Kysy lisää numerosta 044 723 4700 tai info@bref.fi. Palvelumme on tilanhakijoille ilmainen.
Hissi
Bureau Real Estate Finland Oy
Lars Sonckin kaari 16, 02600 Espoo
Näytä puhelinnumero
0447234700
Bureau Real Estate Finland Oy
https://www.bref.fi