Vuokrataan toimistotilat - Helsinki
Siltasaarenkatu 12, Hakaniemi, 00530 Helsinki #10846686
Vuokrattavana toimistotilaa Hakaniemen Paasitalossa.
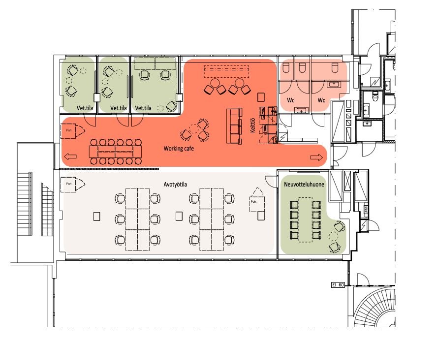
Kiinteistön 7. kerrokseen on tulossa 280 m² Aina Valmis -tila. Toimisto remontoidaan laadukkaita materiaaleja käyttäen. Aina Valmis-toimistotilojen hiilijalanjälki on tehty mahdollisimman pieneksi ja remontit on toteutettu vastuullisesti. Toimistossa on avotilaa, muutama huone sekä omat keittiö- ja wc-tilat. Kuvat ovat esimerkkejä toisesta kiinteistön Aina Valmis -tilasta.
Siltasaarenkatu 12 eli Paasitalo on toimisto- ja liikekiinteistö Hakaniemen sykkeessä. Kiinteistön toimitilat ovat nykyaikaistettu ja ne ovat helposti muokattavissa yrityksen tarpeiden mukaan. Tilat ovat varusteltu CAT-6 tietoliikenneyhteydellä ja jäähdytetyllä ilmastoinnilla. Ikkunoista on näkymät joko Hakaniemen, Paasivuorenpuistikon tai meren suuntaan. Ympärillä Hakaniemen monipuolistuva palveluvalikoima..
Kysy lisää numerosta 044 723 4700 tai info@bref.fi. Palvelumme on tilanhakijoille ilmainen.
Hissi
Bureau Real Estate Finland Oy
Lars Sonckin kaari 16, 02600 Espoo
Näytä puhelinnumero
0447234700
Bureau Real Estate Finland Oy
https://www.bref.fi