Vuokrataan liiketilat, tuotantotilat, varastotilat, työtilat, autotalli/-hallitilat, varastohotelli, muut tilat - Jyväskylä
Heinämäenkuja 5, 40250 Jyväskylä #10846671
Monien mahdollisuuksien varasto/hallitila.
Halli on n. 3 m korkea. Tilaan tulee vesipiste ja tarvittaessa tilaan voidaan tehdä esim. keittiö ja saneerata avaimet käteen periaatteella toiveiden mukaiseen kuntoon.
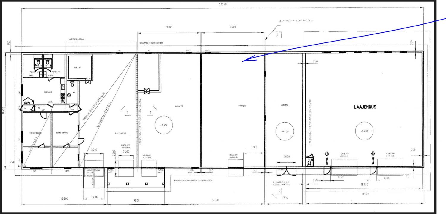
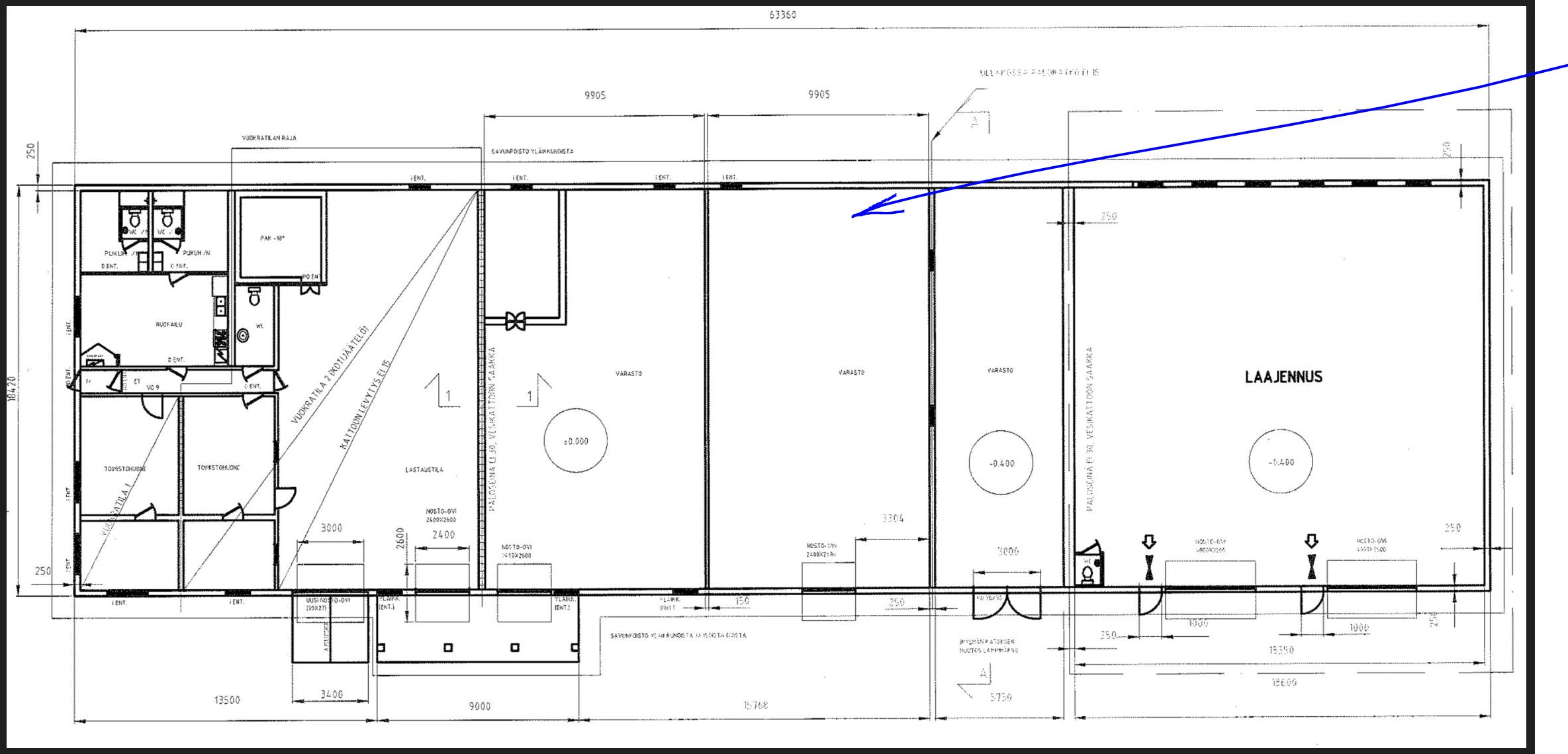
Vuokra tälläisenaan kun se on nyt on 1200,00 eur/kk ja tilaa on n. 180 m2. Tila ei ole alvillinen, mutta sekin tarvittaessa voidaan sopia. Vuokrattava tila on merkittynä pohjakuvaan nuolella.
Osoite
Heinämäenkuja 5, 40250 Jyväskylä
Tilatyyppi
Liiketilaa
180 m2
Tuotantotilaa
180 m2
Varastotilaa
180 m2
Työtilaa
180 m2
Autotalli/-hallitilaa
180 m2
Varastohotelli
180 m2
Muuta tilaa
180 m2
Yhteensä
180 m2
Tilajako
Lämmintä varasto/hallitilaa n. 180 m2 isolla ovella. Vesipiste. Halli on merkattu pohjakuvaan sinisellä nuolella.
Pohjapiirros
Tila soveltuu
Studio/ateljé, autokorjaamo
Vuokra
1200
Kiinteistö
Teollisuus- ja yrityskäyttöön tarkoitettu kiinteistö, jossa toimii useita yrityksiä.
Sijainti
Osoite Heinämäenkuja 5, 40250 Jyväskylä sijaitsee Palokan alueella Jyväskylässä.
Pysäköinti
Piha-alueella on runsaasti parkkitilaa.
Palvelut
Sekä Seppälän, että Palokan palvelut ovat lähellä.
Vapautuu
Heti
Kerros
1 / 1
Katutasossa
Ota yhteyttä
Pro Tilaratkaisut Oy
Marko Ruuskanen
Pro Tilaratkaisut Oy
Puh.
Näytä puhelinnumero
040 411 4703
Pyydä lisätietoa
