Vuokrataan toimistotilat, liiketilat, näyttelytilat, tuotantotilat, varastotilat, työtilat, toimistohotelli, varastohotelli, hoivatilat, muut tilat - Jyväskylä
Keskustan toimistot, Opistokuja 6, 40100 Jyväskylä #10846652
Tila sijaitsee keskustassa.
Osoite
Opistokuja 6, 40100 Jyväskylä
Tilatyyppi
Toimistotilaa
10 - 400 m2
Liiketilaa
10 - 400 m2
Näyttelytilaa
10 - 400 m2
Tuotantotilaa
10 - 400 m2
Varastotilaa
10 - 400 m2
Työtilaa
10 - 400 m2
Toimistohotelli
10 - 400 m2
Varastohotelli
10 - 400 m2
Hoivatilaa
10 - 400 m2
Muuta tilaa
10 - 400 m2
Yhteensä
10 - 400 m2
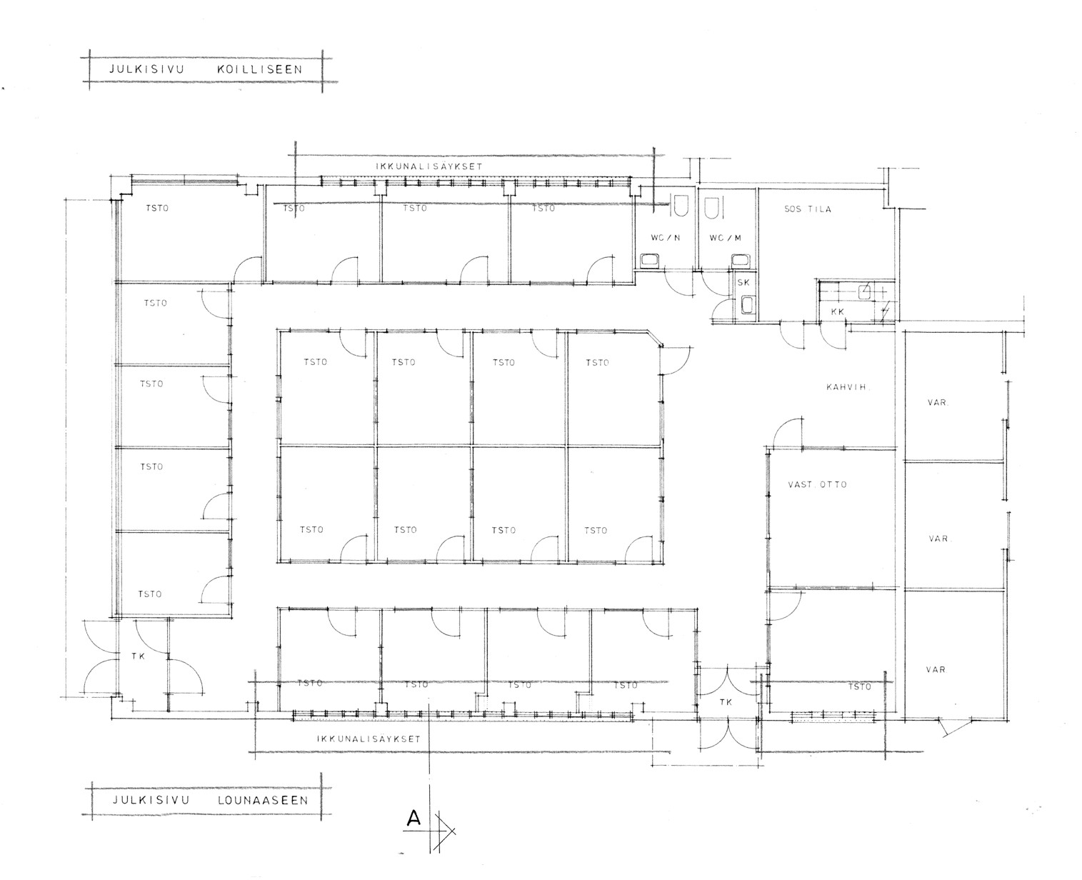
Tilajako
Jaettavissa
Keskustassa 400 m2 tila joka haettu tällä hetkellä huoneisiin kevytväliseinillä. Tilassa on yhteiskäytössä keittiö, neuvotteluhuone, kahvio, eteisaula, monitoimilaite, tuhooja. Tila on jaettavissa isompiin kokonaisuuksiin tai vuokrattavissa/ostettavissa kokonaan. Tila soveltuu toimisto ja moneen muuhun käyttöön loistavasti. Tarvittaessa voimme saneerata ja kalustaa tiloja aina avaimet käteen periaatteella asti. Lopussa visuaalikuvia joissa tiloja saneerattu tähän päivään.
Pohjapiirros
Tila soveltuu
Kahvila, studio/ateljé, koulutus, parturi- ja kampaamo, popup, elintarviketila, coworking
Vuokra
alk. 260,00/kk
Vuokraan sisältyy sähkö, vesi, lämpö
Myyntihinta
400000,00
Sijainti
Keskusta.
Pysäköinti
Paikkoja varattavissa ja pysäköintikiekkopaikkoja on tien toisella puolella runsaasti.
Palvelut
Keskustan palvelut käden ulottovilla.
Kulkuyhteydet
Hyvät kulkuyhteydet niin autolla kuin kävellen.
Lisätietoa saneerauksista
Tilaa on vuosien varrella saneerattu kaupasta toimistotiloiksi, julkisivua on vasta korjausmaalattu.
Vapautuu
Heti
Kerros
1 / 1
Katutasossa
Näkyvällä paikalla
Jaettavissa
Ota yhteyttä
Pro Tilaratkaisut Oy
Marko Ruuskanen
Pro Tilaratkaisut Oy
Näytä puhelinnumero
040 411 4703
Pyydä lisätietoa
