Videoesittely
Vuokrataan liiketilat - Helsinki
Ilkantie 13, Pohjois-Haaga, 00400 Helsinki #10846648
Ilkantie 13 - Liiketila 68 m²
Osoite
Ilkantie 13, 00400 Helsinki
Tilatyyppi
Liiketilaa
68 m2
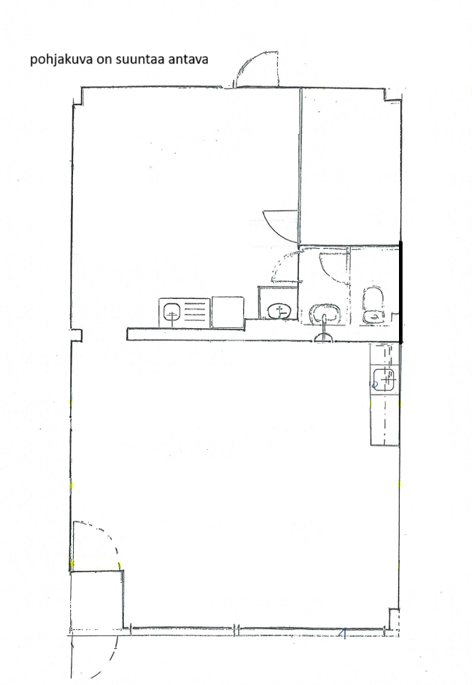
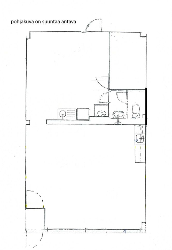
Pohjapiirros
Vuokra
1200 €/kk (alv 0%)
Kiinteistö
Siisti liiketila Pohjois-Haagassa
Siistikuntoinen, heti vapaa liiketila vilkkaalla Ilkantiellä, erinomaisella näkyvyydellä kadulle suurten näyteikkunoiden ansiosta.
Tila on toiminut aiemmin parturi-kampaamona ja soveltuu hyvin samaan käyttöön tai muuhun palveluliiketoimintaan (ei kahvila/ravintola) tai vaikkapa toimistoksi. Seinät on maalattu ja isoimman huoneen lattia uusittu laminaatilla, kaapistot ovat vaaleita ja kokonaisuus on raikas ja moderni.
Tilassa on tuulikaappi, iso asiakastila vesipisteellä ja kaapistoilla, taaemmassa huoneessa keittiö jääkaapilla, kaksi vesipistettä, tilavaraus pyykinpesukoneelle sekä uloskäynti takapihalle ja WC-tilaan, joka on vaalea, laatoitettu ja uusittu putkiremontin yhteydessä. Lisäksi on pienempi huone, joka sopii esimerkiksi hoitohuoneeksi tai toimistoksi ja jossa on myös kaapisto.
Asiakkaiden käyttöön on varattu kaksi parkkipaikkaa aivan sisäänkäynnin edessä.
Sijainti on erinomainen: bussipysäkit lähes vieressä, Huopalahden juna-asema vartin kävelyetäisyydellä ja Raide-Jokerin pysäkki parin minuutin kävelymatkan päässä, mikä lisää saavutettavuutta. Autolla pääsee nopeasti Hämeenlinnanväylälle ja Kehä I:lle.
Vuokra: 1 200 €/kk (ALV 0 %) + vesimaksu. Sähkö kulutuksen mukaan.
Katso oheiset kuvat ja video!
Ota yhteyttä ja sovi esittely!
Toimitilavälityspalvelumme on tilanhakijalle maksuton.
Siistikuntoinen, heti vapaa liiketila vilkkaalla Ilkantiellä, erinomaisella näkyvyydellä kadulle suurten näyteikkunoiden ansiosta.
Tila on toiminut aiemmin parturi-kampaamona ja soveltuu hyvin samaan käyttöön tai muuhun palveluliiketoimintaan (ei kahvila/ravintola) tai vaikkapa toimistoksi. Seinät on maalattu ja isoimman huoneen lattia uusittu laminaatilla, kaapistot ovat vaaleita ja kokonaisuus on raikas ja moderni.
Tilassa on tuulikaappi, iso asiakastila vesipisteellä ja kaapistoilla, taaemmassa huoneessa keittiö jääkaapilla, kaksi vesipistettä, tilavaraus pyykinpesukoneelle sekä uloskäynti takapihalle ja WC-tilaan, joka on vaalea, laatoitettu ja uusittu putkiremontin yhteydessä. Lisäksi on pienempi huone, joka sopii esimerkiksi hoitohuoneeksi tai toimistoksi ja jossa on myös kaapisto.
Asiakkaiden käyttöön on varattu kaksi parkkipaikkaa aivan sisäänkäynnin edessä.
Sijainti on erinomainen: bussipysäkit lähes vieressä, Huopalahden juna-asema vartin kävelyetäisyydellä ja Raide-Jokerin pysäkki parin minuutin kävelymatkan päässä, mikä lisää saavutettavuutta. Autolla pääsee nopeasti Hämeenlinnanväylälle ja Kehä I:lle.
Vuokra: 1 200 €/kk (ALV 0 %) + vesimaksu. Sähkö kulutuksen mukaan.
Katso oheiset kuvat ja video!
Ota yhteyttä ja sovi esittely!
Toimitilavälityspalvelumme on tilanhakijalle maksuton.
Vapautuu
Kysy
Kerros
1
Liitetiedostot
Ota yhteyttä
LogisTila Oy
Kylätie 11-13, 00320 HELSINKI
Karoliina Turppo
Näytä puhelinnumero
050 345 3258
Pyydä lisätietoa
