Vuokrataan toimistotilat - Helsinki
Pohjoisesplanadi 37, Kluuvi, 00100 Helsinki #10846646
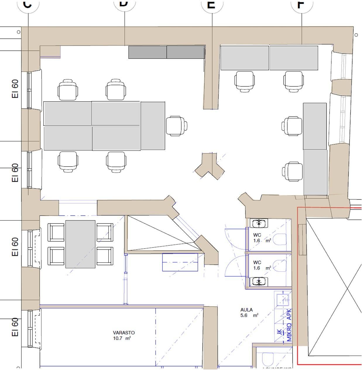
Vuokrataan Helsingin Kluuvista kolmannen kerroksen 76,5 m² toimistotila.
Arvokiinteistö Pohjoisesplanadi 37 Helsingin ydinkeskustassa. Vilkas syke ympäristössä luo puitteet menestyvälle yritykselle. Keskustan monipuoliset palvelut ovat myös lähettyvillä.
Julkisen liikenteen yhteydet löytyvät lyhyen kävelymatkan päästä. Autoilijoita palveleva pysäköintihalli sijaitsee P-Kluuvissa.
Kysy rohkeasti lisätietoja ja sovitaan käynti kohteella jo tänään!
Hausala Oy
Erkkilänkatu 11, 33100 Tampere
Näytä puhelinnumero
050 472 7077
Mikko Ranta
Näytä puhelinnumero
050 360 6500
Mika Savikko
Näytä puhelinnumero
050 472 7077
