Vuokrataan toimistotilat - Helsinki
Kasarmikatu 44, Kaartinkaupunki, 00130 Helsinki #10846547
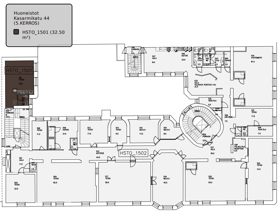
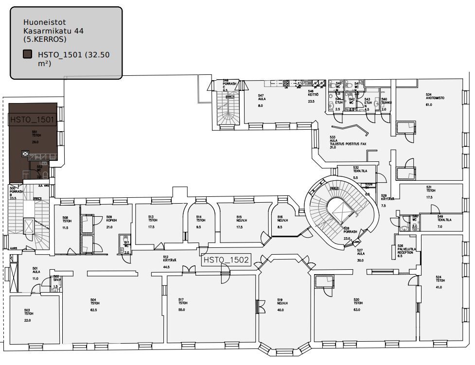
Vuokrattavana yhden huoneen toimisto Helsingin keskustasta. Kohde sijaitsee Kaartinkaupungissa, Esplanadin puiston kupeessa.
Kiinteistössä on pääasiassa toimistotilaa sekä muutama kivijalassa sijaitseva liiketila. Alakerrassa sijaitsee ravintola ja lähettyviltä löytyy lukuisia keskustan lounasravintoloita sekä muita palveluita helpottamaan yrityksen arkea. Keskeisen sijainnin vuoksi kiinteistöön on hyvät kulkuyhteydet ja autoileville löytyy lähistöllä sijaitsevasta Kasarmintorin pysäköintihallista paikkoja.
Lisätiedot ja kohde-esittelyt 020 7290 710, lisää kohteita premises.fi
Energialuokka E.Kerros: 5
Liitetiedostot
CRE PREMISES
Puh. Näytä puhelinnumero 020 7290 710
Vantaankoskentie 14
01670 VANTAA
