Vuokrataan toimistotilat - Jyväskylä
Ahjokatu 14, Seppälä, 40320 Jyväskylä #10846538
Toimistotilaa Jyväskylän Seppälässä.
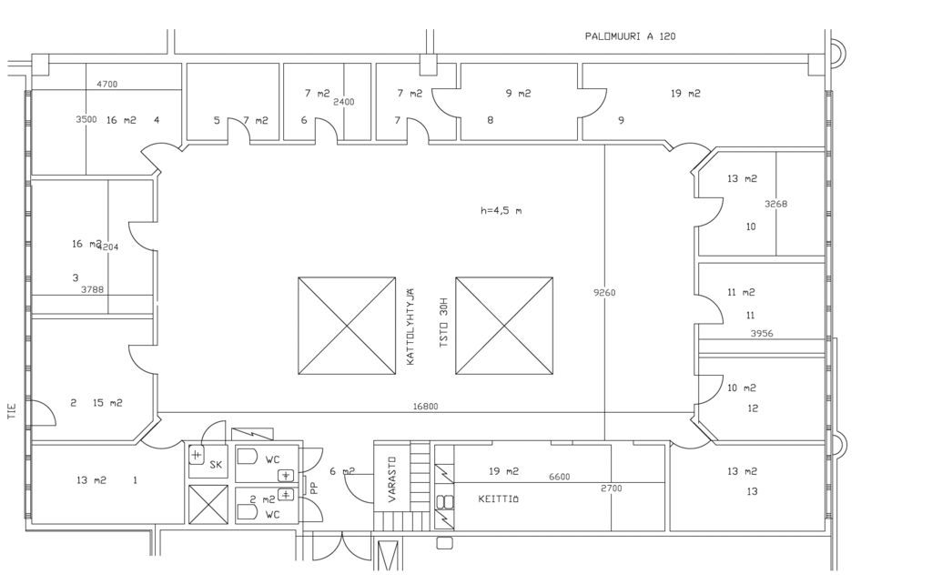
Tämä 354 m² toimistotila sijaitsee kiinteistön 2. kerroksessa. Toimistossa on 13 erikokoista työhuonetta, avotilaa sekä omat keittiö- ja wc-tilat. Kerrokseen on tavarahissiyhteys. Tila on arvonlisäveroton.
Ahjokatu 14 sijaitsee hyvällä paikalla Jyväskylän Seppälässä, kauppakeskus Seppää vastapäätä. Monipuoliset päivittäispalvelut, erikoisliikkeet ja lounasravintolavaihtoehdot sijaitsevat kävelyetäisyydellä. Kiinteistön pihalla on hyvin paikoitustilaa niin henkilökunnalle kuin asiakkaillekin. Alueelle on hyvät bussiyhteydet. Jyväskylän keskustaan on noin 2,5 kilometrin matka.
Kysy lisää numerosta 044 723 4700 tai info@bref.fi. Palvelumme on tilanhakijoille ilmainen.
Hissi
Bureau Real Estate Finland Oy
Lars Sonckin kaari 16, 02600 Espoo
Näytä puhelinnumero
0447234700
Bureau Real Estate Finland Oy
https://www.bref.fi