Vuokrataan toimistotilat, liiketilat, varastotilat, muut tilat - Vantaa
Porttikaari 2, 01200 Vantaa #10846520
Porttikaari 2, Vantaa – 3 250 m² myymälä-/varastotilaa + autohalli, erinomainen sijainti
Osoite
Porttikaari 2, 01200 Vantaa
Tilatyyppi
Toimistotilaa
258 m2
Liiketilaa
1550 m2
Varastotilaa
240 m2
Muuta tilaa
1200 m2
Yhteensä
3250 m2
Kiinteistö
Porttikaari 2, Vantaa – 3 250 m² myymälä-/varastotilaa + autohalli, erinomainen sijainti
Porttikaari 2 on vuonna 2005 valmistunut, edustava liikekiinteistö Vantaan Porttipuistossa – yhdessä pääkaupunkiseudun vahvimmista retail- ja ison koon myymäläkeskittymistä. Kokonaisvuokrattava ala on noin 3 250 m², johon sisältyy 1. kerroksen korkeaa myymälä-/näyttelytilaa, varastoja sekä pohjakerroksen autohalli. Kohteessa on sekä henkilö- että tavarahissi, mikä sujuvoittaa arjen logistiikkaa. Pihassa ja hallissa on yhteensä 38 autopaikkaa.
Sijainti Porttipuiston palveluiden keskellä tuo asiakasvirtaa: naapurustossa mm. IKEA, Helsinki Outlet, Tokmanni, Puuilo, Asko, Unikulma, S-Market ja McDonald’s. Lisäksi Vantaan raitiotien linjaus ja pysäkki ovat suunnitteilla alueelle.
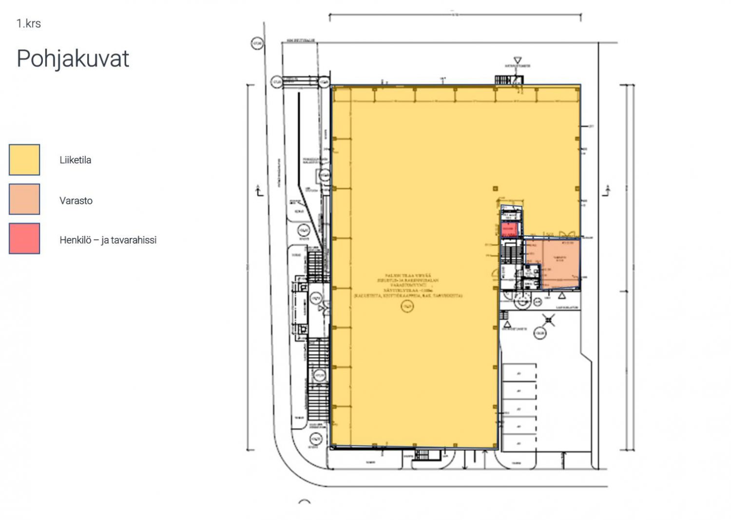
Tilajako (ohjeellinen)
Kokonaisala: n. 3 250 m².
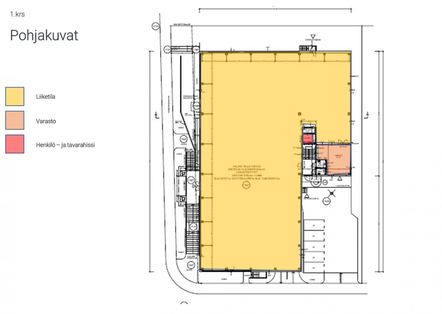
1. kerros
Lämmin huoneala n. 1 550 m² (vapaa korkeus 6–8 m) + varasto n. 80 m².
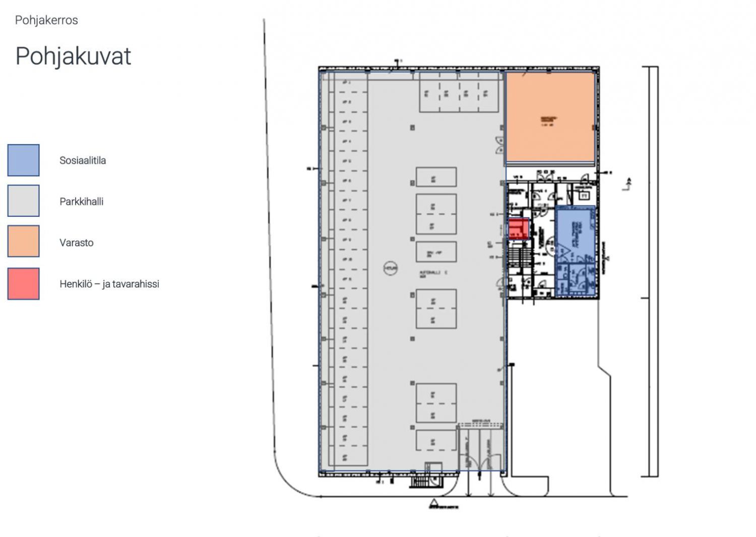
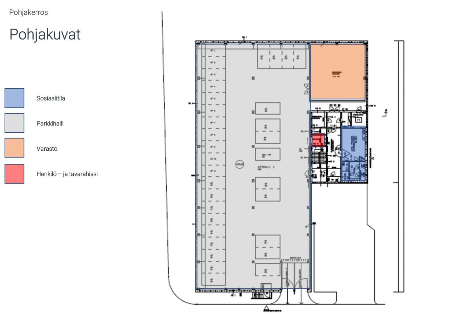
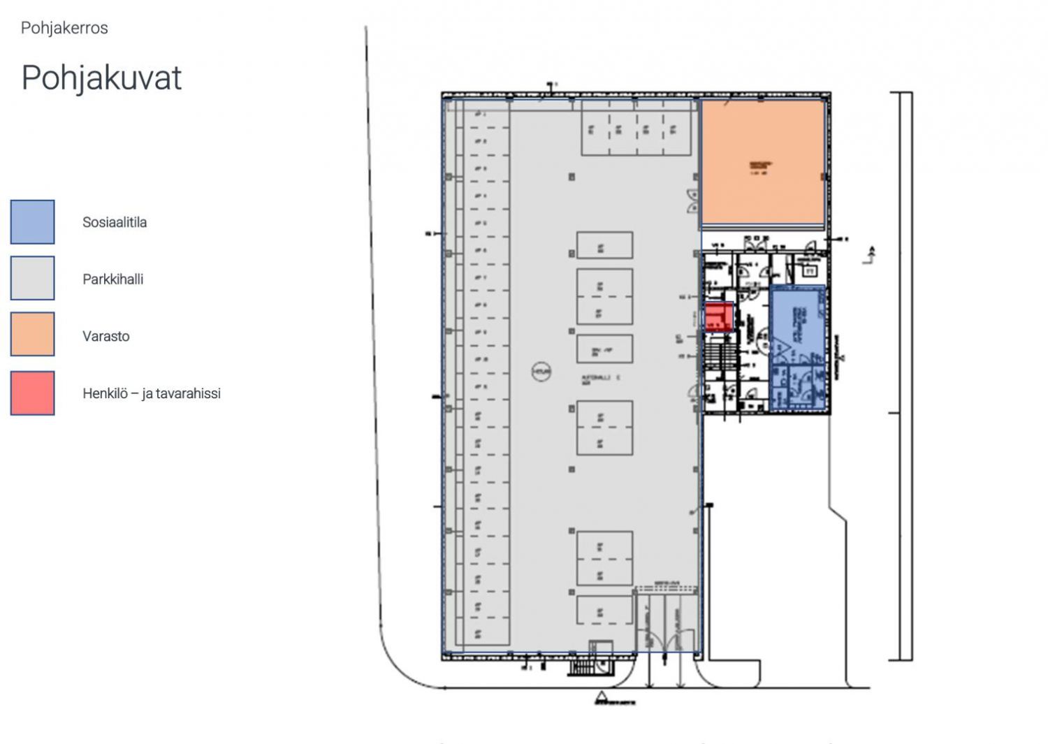
Pohjakerros
Autohalli n. 1 200 m² (32 autopaikkaa)
Varasto n. 150 m²
Sosiaalitilat n. 258 m²
Kiinteistövarasto n. 12 m².
Tekniset tiedot ja varustelu
Lämmitys: kaukolämpö.
Ilmanvaihto: koneellinen LTO.
Rakenteet: seinä- ja kattorakenteet betonia, välipohjat ontelolaattaa; julkisivu lasi/tiili/Paroc-elementti; katemateriaali huopa.
1. kerroksen vapaa korkeus 6–8 m; pohjakerroksen huonekorkeus n. 2,5 m, kantavuus 5,0 kN/m².
Henkilö- ja tavarahissi.
Pihan pinnoitteet: asfaltti ja kivetys.
Pysäköinti
Yhteensä 38 autopaikkaa: hallissa 33, pihalla 5. Pohjakerroksen hallissa 32 merkittyä autopaikkaa.
Sijainti ja palvelut
Porttipuisto on helposti saavutettavissa Kehä III:n ja Lahdenväylän kautta. Lähialueen ankkurit (mm. IKEA, Helsinki Outlet, Tokmanni, Puuilo, Asko, Unikulma, S-Market, McDonald’s) vahvistavat asiakasvirtoja ja logistiikkaa. Vantaan raitiotien linjaus ja pysäkki on esitetty alueelle.
Porttikaari 2 on vuonna 2005 valmistunut, edustava liikekiinteistö Vantaan Porttipuistossa – yhdessä pääkaupunkiseudun vahvimmista retail- ja ison koon myymäläkeskittymistä. Kokonaisvuokrattava ala on noin 3 250 m², johon sisältyy 1. kerroksen korkeaa myymälä-/näyttelytilaa, varastoja sekä pohjakerroksen autohalli. Kohteessa on sekä henkilö- että tavarahissi, mikä sujuvoittaa arjen logistiikkaa. Pihassa ja hallissa on yhteensä 38 autopaikkaa.
Sijainti Porttipuiston palveluiden keskellä tuo asiakasvirtaa: naapurustossa mm. IKEA, Helsinki Outlet, Tokmanni, Puuilo, Asko, Unikulma, S-Market ja McDonald’s. Lisäksi Vantaan raitiotien linjaus ja pysäkki ovat suunnitteilla alueelle.
Tilajako (ohjeellinen)
Kokonaisala: n. 3 250 m².
1. kerros
Lämmin huoneala n. 1 550 m² (vapaa korkeus 6–8 m) + varasto n. 80 m².
Pohjakerros
Autohalli n. 1 200 m² (32 autopaikkaa)
Varasto n. 150 m²
Sosiaalitilat n. 258 m²
Kiinteistövarasto n. 12 m².
Tekniset tiedot ja varustelu
Lämmitys: kaukolämpö.
Ilmanvaihto: koneellinen LTO.
Rakenteet: seinä- ja kattorakenteet betonia, välipohjat ontelolaattaa; julkisivu lasi/tiili/Paroc-elementti; katemateriaali huopa.
1. kerroksen vapaa korkeus 6–8 m; pohjakerroksen huonekorkeus n. 2,5 m, kantavuus 5,0 kN/m².
Henkilö- ja tavarahissi.
Pihan pinnoitteet: asfaltti ja kivetys.
Pysäköinti
Yhteensä 38 autopaikkaa: hallissa 33, pihalla 5. Pohjakerroksen hallissa 32 merkittyä autopaikkaa.
Sijainti ja palvelut
Porttipuisto on helposti saavutettavissa Kehä III:n ja Lahdenväylän kautta. Lähialueen ankkurit (mm. IKEA, Helsinki Outlet, Tokmanni, Puuilo, Asko, Unikulma, S-Market, McDonald’s) vahvistavat asiakasvirtoja ja logistiikkaa. Vantaan raitiotien linjaus ja pysäkki on esitetty alueelle.
Vapautuu
Kysy
Ota yhteyttä
Logistila Oy
Kalevan puistotie 22 LT 4, 33500 Tampere
Tuomas Lehtinen
Näytä puhelinnumero
044 491 5961
Pyydä lisätietoa
