Vuokrataan toimistotilat - Helsinki
Siltasaarenkatu 8-10, Hakaniemi, 00530 Helsinki #10846485
Laadukasta uutta toimistotilaa Hakaniemestä
Osoite
Siltasaarenkatu 8-10, 00530 Helsinki
Tilatyyppi
Toimistotilaa
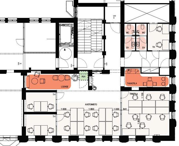
178 m2
Muuta
Vuokrataan 178m2 5.kerroksen toimistotilaa Hakaniemestä, Siltasaari10 kiinteistökehityskohteesta.
Kohteen 1-2 kerrokset ovat ravintola- ja muiden tukevien palveluiden käyttöön ja kerrokset 3-7 toimistotila käyttöön.
Siltasaari10 kohteen välittömässä läheisyydessä on kaupungin parhaat julkiset liikenneyhteydet, metro, ratikka ja bussipysäkit ovat aivan vieressä.
Sisäkuvat ovat havainnekuvia.
Tervetuloa tutustumaan, varaathan välittäjältä oman esittelyaikasi. Voit kysyä meiltä myös muita sopivia vaihtoehtoja, kauttamme löydät juuri Teidän tarpeisiinne sopivat tilat.
Palvelumme on tilanhakijalle veloitukseton!
Kohteen 1-2 kerrokset ovat ravintola- ja muiden tukevien palveluiden käyttöön ja kerrokset 3-7 toimistotila käyttöön.
Siltasaari10 kohteen välittömässä läheisyydessä on kaupungin parhaat julkiset liikenneyhteydet, metro, ratikka ja bussipysäkit ovat aivan vieressä.
Sisäkuvat ovat havainnekuvia.
Tervetuloa tutustumaan, varaathan välittäjältä oman esittelyaikasi. Voit kysyä meiltä myös muita sopivia vaihtoehtoja, kauttamme löydät juuri Teidän tarpeisiinne sopivat tilat.
Palvelumme on tilanhakijalle veloitukseton!
Vapautuu
Kysy
Rakennusvuosi
2020
Kerros
5
Ota yhteyttä
Tuloskiinteistöt Oy
Rikhardinkatu 2 B 5, 00130 Helsinki
Näytä puhelinnumero
(09) 6841 620
Nina Meyke
Commercial Real Estate Advisor
Näytä puhelinnumero
+358 50 466 1519
Jorma Ryynänen
Commercial Real Estate Advisor LKV, LVV
Näytä puhelinnumero
+358 40 708 4064
Pyydä lisätietoa
