Vuokrataan toimistotilat - Helsinki
Mannerheimintie 103, Ruskeasuo, 00280 Helsinki #10846463
Vuokrattavana modernia, laadukasta pientoimistotilaa toimistohotellista.
Osoite
Mannerheimintie 103, 00280 Helsinki
Tilatyyppi
Toimistotilaa
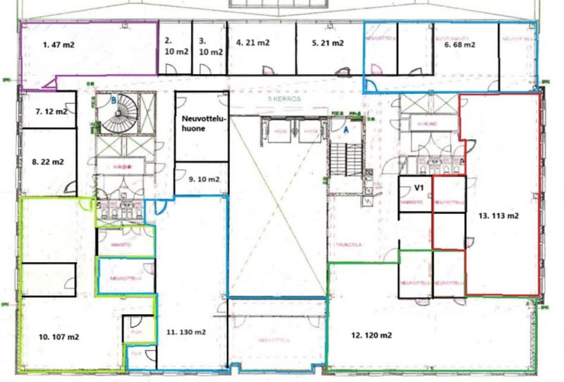
68 m2
Kiinteistö
Vuokrattavana modernia, laadukasta pientoimistotilaa toimistohotellista. Toimiston vuokra sisältää: sähkö, lämmitys, 5.krs neuvotteluhuoneen käytön, internetin, siivous 1 krt/viikko, kahvi + tee, aulapalvelu.
Sijainti
Ruskeasuo, Helsinki
Pysäköinti
Kiinteistössä on lämmin halli, jossa autopaikkoja vuokrattavaksi.
Palvelut
-Aulapalvelu
-Edustussaunatilat
-Kuntosali
-Lähialueen palvelut.
-Edustussaunatilat
-Kuntosali
-Lähialueen palvelut.
Kulkuyhteydet
-Raitiovaunu
-Bussi
-Metro
-Oma auto
-Bussi
-Metro
-Oma auto
Vapautuu
Heti
Kerros
5
Energiatehokkuusluokka
Ei lain edellyttämää energiatodistusta
Näkyvällä paikalla
Hissi
Ota yhteyttä
REALIUM OY LKV
Tammasaarenkatu 1, 00180 Helsinki
Vaihde:
Näytä puhelinnumero
010 326 346
Tuomo Mäkelä
tuomo.makela@realium.fi
p.
Näytä puhelinnumero
044 050 1158
Joel Keto
joel.keto@realium.fi
p.
Näytä puhelinnumero
045 317 0330
KAIKKI TILAVAIHTOEHDOT KERRALLA!
SOITA - MEILAA JA TILAA NÄYTTÖ!
Ilmainen palvelu tilanhakijoille.
Kartoitamme parhaat tilavaihtoehdot.
Kaikki kohteet eivät ole netissä.
Pyydä lisätietoa
