Vuokrataan toimistotilat - Tampere
Hämeenkatu 26, Keskusta, 33200 Tampere #10846385
Valoisa toimisto ydinkeskustassa vapaana
Osoite
Hämeenkatu 26, 33200 Tampere
Tilatyyppi
Toimistotilaa
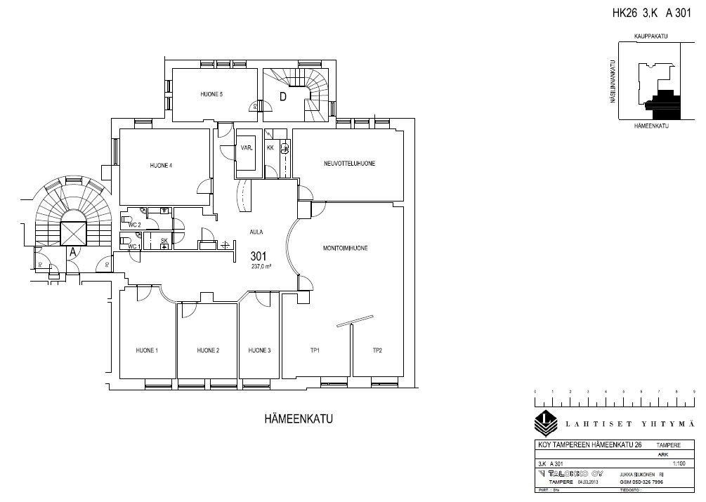
237 m2
Muuta
Hämeenkadun, Näsilinnankadun ja Kauppakadun kulmauksessa sijaitseva ns. Tuotannon talo on arkkitehti Birger Federleyn suunnittelema kokonaisuus. Se on valmistunut v. 1914 ja v. 1941 arkkitehti Bertel Strömmerin suunnittelemien muutosten jälkeen talo on tyylillisesti lähes funktionalistinen. Tässä hienossa rakennuksessa toimii erilaisia liikeitä, ravintoloita ja toimistokäyttäjiä.
Nyt vapaana Hämeekadun puolella, valoisa 237 m2 kokoinen toimistotila.
Tilassa on erikoisia toimistohuoneita, neuvotteluhuone, aulatila sekä omat wc-tilat ja pieni keittiö.
Koneellinen ilmanpoisto ja ilmalämpöpumppuja esim. viilennykseen.
Rakennuksen kellarissa on yhteiskäyttöiset pukukaappi- ja suihkutilat ja oma pysäköintihalli.
Tervetuloa tutustumaan, varaathan välittäjältä oman esittelyaikasi. Voit kysyä meiltä myös muita sopivia vaihtoehtoja, kauttamme löydät juuri Teidän tarpeisiinne sopivat tilat. Palvelumme on tilanhakijalle veloitukseton!
Nyt vapaana Hämeekadun puolella, valoisa 237 m2 kokoinen toimistotila.
Tilassa on erikoisia toimistohuoneita, neuvotteluhuone, aulatila sekä omat wc-tilat ja pieni keittiö.
Koneellinen ilmanpoisto ja ilmalämpöpumppuja esim. viilennykseen.
Rakennuksen kellarissa on yhteiskäyttöiset pukukaappi- ja suihkutilat ja oma pysäköintihalli.
Tervetuloa tutustumaan, varaathan välittäjältä oman esittelyaikasi. Voit kysyä meiltä myös muita sopivia vaihtoehtoja, kauttamme löydät juuri Teidän tarpeisiinne sopivat tilat. Palvelumme on tilanhakijalle veloitukseton!
Vapautuu
Kysy
Kerros
3.
Ota yhteyttä
Tuloskiinteistöt Oy
Finlaysoninkatu 4, 33210 Tampere
Näytä puhelinnumero
050 502 4639
Sanna Eerilä-Vänni
Director, Partner
Näytä puhelinnumero
+358 50 5024639
Tara Särkinen
Commercial Real Estate Advisor
Näytä puhelinnumero
+358443187720
Pyydä lisätietoa
