Vuokrataan toimistotilat - Helsinki
Tallberginkatu, Ruoholahti, 00180 Helsinki #10846344
Puheen äänitysstudiotoimintaan soveltunut tila.
Osoite
Tallberginkatu, 00180 Helsinki
Tilatyyppi
Toimistotilaa
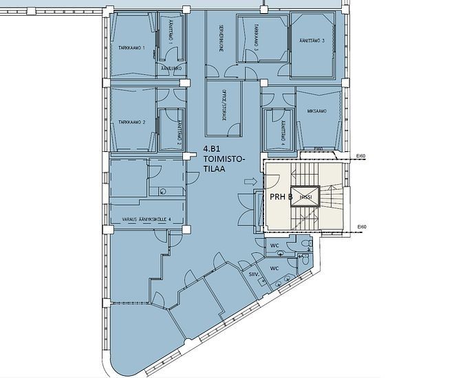
282,5 m2
Pohjapiirros
Tila soveltuu
Studio/ateljé
Kiinteistö
Toimiston aiemman käyttötarkoituksen mukaan soveltunut puheen äänitysstudiotoimintaan.
Tila sijaitsee hissillisessä B-rapussa 4. kerroksessa.
Tehokas huonekonttori 4. kerroksessa.
Tila sijaitsee hissillisessä B-rapussa 4. kerroksessa.
Tehokas huonekonttori 4. kerroksessa.
Sijainti
Ruoholahti, Länsisatama.
Palvelut
Aulapalvelut, Lounasravintola / kahvila, Neuvottelutiloja, POOL-joustotilat, Parkkihalli, Pyöräparkki, Suihkulliset sosiaalitilat, Sähköauton latauspiste
Kulkuyhteydet
Bussi 100 m, Juna 2,0 km, Lentokenttä 20 km, Metro 600 m, Raitiovaunu 200 m
Vapautuu
Heti
Kerros
4 / 7
Ympäristöluokitus
BREEAM In-Use Very Good
Näkyvällä paikalla
Hissi
Ota yhteyttä
Suomen Kiinteistöinstituutti Oy
Sahaajankatu 27
00810 HELSINKI - HERTTONIEMI
Tom Dahlström Näytä puhelinnumero 050 66 959
http://www.kiinteistoinstituutti.fiPyydä lisätietoa
